Column いえズーム コラム

「こんな暮らしがしたい」を言葉で伝える・・ライフオーガナイザーがアドバイスする片づけのコツ その3

思っていることを書きだしてみる

前回は、新築したのに散らかる原因は住み手の「クセ」と関係が深く、
新居でスッキリ暮らすためには、
どんな家に住みたいのか、
その家で家族とどういう暮らしがしたいのか、
毎日行われる日常生活の家事が快適にできるのか、
まず、自分たち自身を知る必要がある、というお話をしました。

最終回となる今回は、
もう一歩踏み込んで片づく家の具体的な提案をしてみたいと思います。

2016_03mino_minimum.jpg

ポイントは2つあります
1、自分と家族のしたい暮らしを、設計する人に残さず伝えること!
2、設計する人に伝えたことが図面に書かれていること


どうやって設計する人に伝えればいいのかというと、
それは言葉で表現することです。

例えばこんなふうに。
*自分と家族はこういう人です。
私は4人家族です。
結婚して10年、自分と妻は34歳 仕事は二人とも会社員でフルタイム働いている。
子供は長男6歳 4月から小学一年生、長女は3歳 4月から幼稚園の年少
今は別に暮らしている母と将来同居したい。妻も了承。

趣 味
自分は車が好きで自分でカスタマイズする。TVでスポーツ観戦をする(野球やサッカーなど)
妻は週に1度ヨガに通っている。ファッション雑誌をよく読んでいる。
息子はゲームとマンガが好き。娘はプリキュアが好き
習い事はまだしていない

平日は家にいてゆっくりする時間もなく二人とも子供の世話と翌日の用意など、家事に追われています。
休日はなるべく子供と過ごす時間を大切に、一緒に出掛けたり、家で遊んだりする。
時々妻と交代で自分の好きなことをする時間が楽しみ。

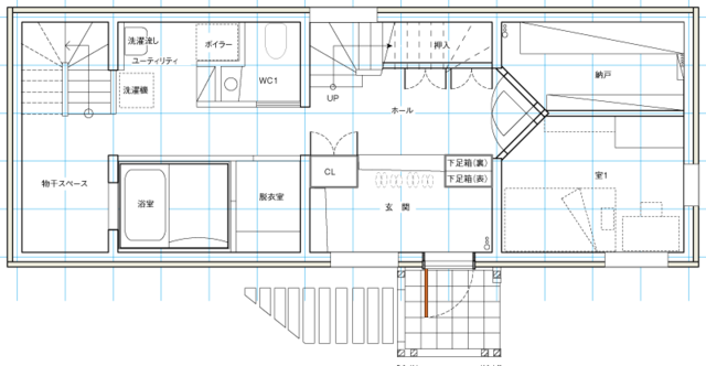
図面をチェックする方法

2016_03mino_zumen.png

図面が出てきたら、
大きく書いてある平面図に毎日の家事の行動がスムーズにできるように
設備やスペースが配置され、家具の置き場所が書いてあるか見てください。

・家事(洗濯)を例にします。
洗濯機は毎日回す

服を脱ぐ→  服を脱いで壁に手がぶつからないか

かごに入れるor一時置きする→ かごを置く、一時置き場所が決まっているか

洗濯機に入れて回すor汚れがひどいときは下洗いする
→洗濯機と洗面器が近いか、または下洗い用の流しがあるか。洗剤は使いやすいところに場所があるか。

干す→物干しが家族の服が干す場所が書いてあるか、またはほし姫などの名称が書いてあるか。ハンガーやピンチ、洗濯ネットなど使うもの場所が決まっているか。

取り込むorアイロンをかける→干す近くに棚やカウンターなど作業する場所があるか
たたむor掛ける 〃

しまう→クローゼットやタンスの場所は一連の作業の場所と近いか

服を着る→クローゼットやタンスの中から着る服を選ぶ

その家はあなたらしいですか?

2016_03mino_dish.jpg

「こういう暮らしがしたい」
家を建てる目的をずっと忘れず思い出せるように、言葉や写真などでいつも見えるようにしておくこと。イメージボードなど。
打ち合わせしているうちに当初の目的を忘れてしまうことがあるので、それを予防する効果もあります。

それにはまず自分を知ることが大切です。
一枚の紙などにしたいことや思っていることを全部書き出したり、また付箋を使って書いてもいいです。
書いたもの全体を見渡すと、自分の頭と心にあることが自分でも分かります。
それが自分を知ることにつながります


ライフオーガナイズはモノや空間を整える前に、頭と心を整えます。
ライフオーガナイズは「暮らしの最適化」ですが、
『自分と家族が幸せに暮らす仕組みをつくること』とも言えます。

いまミニマリストが注目されています
ミニマリストとは、持ち物をできるだけ減らし、必要最小限のものだけで暮らす人を言います。

広い部屋にテーブルが ぽつーんと 一つ

本当にそれで生活できるの~!? と思いますよね。

その生活が維持できる方法が二つ考えられます。
1、 モノを極力厳選して、種類と数を最低限までしぼる。
例えば、食器はお皿にいくつもの料理を盛れるように、何にでも合う白の大皿をメインに使うとか。
2、部屋の近くにバックヤード的な収納スペースを設ける。
例えば、シューズショップの陳列棚と、裏の在庫スペースのように。


モノが少ないほうがメンテナンスの時間も少なくて済むし、場所もとらないし、
片付ける必要さえいらない場合もあります。


逆にたくさんのモノに囲まれていたほうが安心できる方もいます。
好きなものをいつも見て暮らしたい。

どちらが正しいとか正しくないとかではないのです。
ご自身が AH~ 私って幸せ!と思う暮らしが大切です。

片付けやすい暮らしは、家の中が"あなたらしさ"でいっぱいです。

利き脳から自分らしい収納をみつける

モノを選ぶ基準は、人それぞれの価値観です。 使いやすさが大事な人もいれば、見た目が大事な人もいる。 例えば、少ない量でいいから良い洋服を長く使いたい人、 使いやすい服をある程度の数が欲しい人もいます。

収納方法も同じです。
「洋服の好みは把握しているけれど、自分らしい収納はまだわからない」
じつは多くの人が、自分らしい収納とはどんな方法なのか、わからないのです。
そこで、ライフオーガナイズでは、
「利き脳」診断から自分らしい収納を見つけていきます。


利き脳は右利き、左利きのように、
右脳、左脳で分かれていて、
どちらの脳を優先的に使うかで、収納の仕方が変わります。
右脳を優先的に使う人は、見えることが重要なので見えるオープン収納、
左脳を優先的に使う人は、見えなくてもわかるので扉のついた収納など。

詳しく勉強してみたい人は、こちらの書籍を読んでみてはいかがでしょうか。
00004741_d.jpghttp://www.shufu.co.jp/books/detail/978-4-391-14017-0


片づけやすい家づくりの秘訣は
片付けやすい仕組みが間取り図の中にできていること

2016_03mino_meeting.jpg


ポイントは2つありましたね
1、「自分と家族のしたい暮らしを設計する人に残さず伝えること!」
2、「設計する人に伝えたことが図面に書かれていること」


自分たちだけでうまく伝えきれない。
どんな暮らしがしたいかまだ具体的ではない。
そのようなときはレジデンシャルオーガナイザーにご相談ください。
したい暮らしを具体的に見える化し、設計する人に伝え、図面に書いてあるか確認します。
また、したい暮らしの家ができるように、
完成まで一緒に家づくりのサポートをします。


私たちレジデンシャルオーガナイザーは、
お客様から依頼を受けると
お客様の希望をビルダー様にお伝えして、
そのご希望が家としてかたちになるまでお手伝いします。
家づくりの過程では、ビルダー様からの専門的な提案をお客様にわかる形で伝えます。

また、建築業者様からのご依頼で、
お客様のご希望を引き出し、
それを基本プランにまとめてビルダー様にご提供します。
完成までサポートする場合もあります。

レジデンシャルオーガナイザーが家づくりに参加するスタイルが
5年後にはきっと一般化されていると私は確信しています。

2016_03mino_washitsu.jpg

セミナーにお越しください

この春から一般消費者向けのセミナーが全国で始まっています。

函館でも3月20日14時から (全3回講座)
LIXIL函館ショールーム様の会議室をお借りして開催します。

こんな方にお勧めの講座です!
家を新築したい、
リフォームやリノベーションをしたい、
引っ越しを考えているなど、
住環境が変わる。

家の片づけをどこから手を付けていいのかわからない
自分のしたい暮らしが見つからない
片づけに迷われている人にもおすすめです。

レジデンシャルオーガナイザーってどんなことをするのと
興味のある方も大歓迎です。

詳しい内容や申し込みはこちらのブログをご覧ください
http://ameblo.jp/a-sitaka/entry-12120628095.html

ライフオーガナイザーに興味を持ってくださった方は、
こちらのセミナーもおすすめします。
▪️ライフオーガナイザー2級認定講座
6月5日日曜日10時から17時まで
札幌道新文化センター
http://ameblo.jp/a-sitaka/entry-12134306594.html

8月7日日曜日10時から17時まで
千歳道新文化センター
http://ameblo.jp/a-sitaka/entry-12135734297.html

▪️ライフオーガナイザー入門講座
4月23日10時から13時まで
函館道新文化センター神山教室
http://ameblo.jp/a-sitaka/entry-12134303418.html

---------
連載その1はこちら>>
/20160121150418.html

連載その2はこちら>>
/20160212141426.html
---------


わたし・岩崎美乃の自己紹介☆

2016_01mino-iwasakiSW.jpg

北海道生まれ。建築会社で1級建築士として20年以上200件を超えるおうちの基本設計と銀行などの諸手続きのサポートを担当してきました。

新居を建てるみなさんのお手伝いをするうちに
おうちが広くなっても、収納スペースをたくさん取っても、
散らかってしまうことに気が付きました。
その答えを探すうちに「ライフオーガナイザー」という資格を知り、
住む人に合った暮らしを見つけ、
その暮らしに合った収納を提供できることがわかりました。

いまは、ライフオーガナイザーとして「笑顔でおくる家族の暮らし!」をサポートし、
北海道から住みにくい家をなくしたい。
を目標に活動しています。

得意なことは、人の良いところを見つけること
3人の子ども達は独立し、いまは夫とお姑さんの三人暮らし
昨年、第2回片づけ大賞個人部門ファイナリスト
http://www.katazuke-taisho.com/

所有資格:1級建築士、宅地建物取引士、マスターライフオーガナイザー
       レジデンシャルオーガナイザー、クローゼットオーガナイザー
       CDスペシャリスト、ファイリングデザイナー2級

所属:北海道建築士会函館支部 幹事
   北海道建築士会実行委員会 女性委員
   函館景観審議会 審議委員
   日本ライフオーガナイザー協会 北海道チャプター代表

ブログはこちらです。
http://ameblo.jp/a-sitaka/

2016年03月現在の情報です。詳細は各社公式サイト・電話等でご確認ください。