Column いえズーム コラム

回遊動線・間取りの工夫~住宅設計例20選


行き止まりなく回遊できる動線を生かす設計とは

回遊動線とは

「回遊動線」とは、行き止まりが無いことで、行ったり来たりせずに、ぐるっと回ることができる動線(人が移動する経路)です。この動線を水回りや玄関まわりなどに採り入れることで、家事や身支度がしやすかったり、ショートカット(近道)ができるなど、暮らしやすい間取りが叶います。まずは、IEZOOMの取材でもよくみかける、人気の回遊動線についてご紹介します。

1/玄関ホールと水回りをつなげた回遊動線


玄関ホールから →洗面室 →ユーティリティー →パントリー兼ファミリークローゼット →キッチン(LDK)がつながる回遊式/札幌・イネスホーム


よく見かけるのが、玄関ホールからユーティリティーとリビングの両方に繋がる動線です。玄関ホール▶リビング▶キッチン▶ユーティリティー(洗面・浴室)▶玄関ホール というように、リビングを介して水回りをぐるっと回遊することが出来るタイプです。

■帰宅後の手洗いやうがいがしやすい
■出かける際の身支度がしやすい
■買い物をした食材をリビングを通らずキッチンに運ぶことが出来る
■台所仕事をしながら、洗濯や風呂そうじがしやすい
などのメリットがあります。一方で

■ユーティリティーなどを回遊するため、プライバシーが保たれにくい
などのデメリットも考えられるので、引き戸やドアなどで仕切れるようにする工夫も必要です。

2/玄関とガレージ、シューズクローゼットなど、中と外をつなげた回遊動線


玄関 →アウトドア用品の収納スペース →ガレージが回遊式につながる実例/旭川・昭和木材


玄関▶玄関ホール▶シューズクローゼットや納戸▶インナーガレージ▶玄関 といった、外と中がつながる回遊動線にも人気があります。

■ガレージと玄関ホールが中でつながっているので荷物の運搬がしやすい
■雨や雪に濡れることなく、車との行き来ができる
■アウトドア用品やベビーカーなどを、シューズクローゼットや納戸に片づけやすく出しやすい
■室内に入る前にアウターを掛けられるので、ウィスル対策にも効果的
■出かける前の身支度がしやすい
などのメリットがあげられます。
コロナ以降は、玄関ホールに手洗いを設けるオーナーも増えています。

3/ウォークスルークローゼットを介した回遊動線


夫婦それぞれの個室の間にウォークスルークローゼットを配した回遊式/旭川・昭和木材


ウォークスルークローゼットを採用し、クローゼットを通り抜けることで回遊できる動線も増えてきています。

■通路だったスペースをクローゼットにすることで省スペースが図れる
■動線上にクローゼットがあるので家事ラクが叶う
といったメリットがあります。

4/ライフスタイルの変化を見据えて採り入れよう!

つながることで無駄な動線が減り、便利で家事ラクになる回遊動線ですが、子育て中のファミリーなどが気を付けたいのは、やはりプライバシーの確保です。両親の寝室と子ども部屋をつなげてオープンにしたり、浴室や洗面室などをつなげる際には、間仕切りができたり、ドアや引戸などでクローズできるようにしておくと安心です。また、オープンにしすぎることで、ストック品など見せたくないものが露わになってしまうのも心配です。回遊動線をつくる際は、プロの意見ももらいながら、将来的なことも含めて検討したいですね。

回遊動線について動画でもご紹介しています、こちらもご覧ください!

さて。ここからは過去にIEZOOMが取材した実例の中から、ユニークでオリジナルな「回遊動線」の数々をご紹介します!是非参考にしてみてくださいね。

玄関から始まるオープン設計・5人家族がのびのび暮らす家/晃和住宅



A邸の1階は、収納・階段スペースを囲むように、玄関とLDK、洗面ユーティリティー、バスルームへとつながる回遊式になっており、2階には寝室と子ども部屋が配置されています。一般的な部屋数にもかかわらず個性的な空間に感じられるのは、壁などの仕切りがない設計が理由のひとつ。リビングと階段部分にある吹き抜けや壁で仕切らない設計によって、どの部屋もゆるやかに繋がっています。

広々とした玄関はリビングとつながっていますが、中が見えない設計です。階段と収納スペースを中心にLDK、洗面、バスルームが配置されている回遊式の間取りです。
玄関から始まるオープン設計・5人家族がのびのび暮らす家 札幌市西区/Aさん

1階はウォークスルー収納で回遊できる便利な間取り/橋本建設



扉を開けた瞬間に木の香りが広がる玄関。土間続きにシューズクローゼットが確保されており、家族玄関にもなっています。
玄関ホールを右手に進むとすぐのところに洗面室があります。帰ってすぐに手洗いができる動線。



洗面室をさらに奥に進むと家族分の衣類が収まるファミリークローゼットがあります。ユーティリティーと引き戸で繋がっていており、洗濯後の収納や着替えもスムーズ。LDKにも出られる回遊動線になっています。
パッシブ×ZEH基準×自然素材 高品質を手の届く価格で/石狩市・樽川モデルハウス 橋本建設

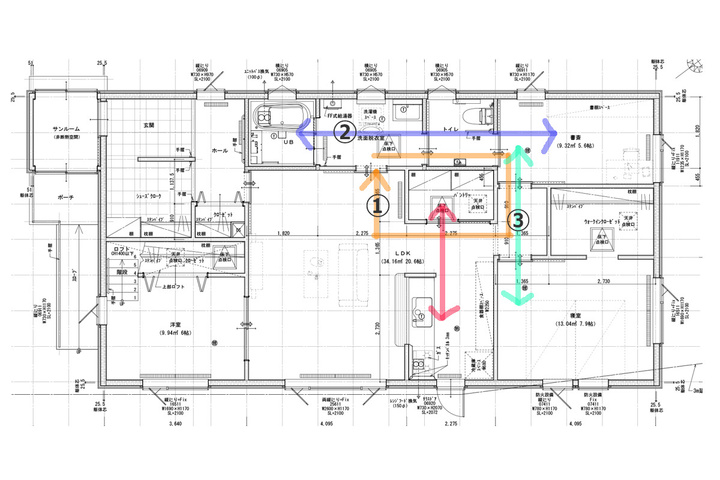
玄関から水回り、パントリー、LDKと回遊できる家事ラク動線 札幌市北区モデルハウス/イネスホーム



玄関ホールから左手にリビング、右手にトイレ、その奥に洗面室が続いています。



玄関から直通の洗面化粧台は、帰宅後やトイレの後の手洗いにも便利です。右手にランドリールームを兼ねた脱衣室、左手にはキッチンに通じるパントリーが続きます。



こちらはキッチンから見たパントリー。壁一面を使った可動棚と、途中からマグネットボードを施したディスプレイコーナーで構成されています。食品や日用品のストックはもちろん、マグネットボードは家族の予定や給食の献立などを貼っておくのにも便利です。(写真左)
パントリーから見たキッチン。買い出し後の整理や、料理・洗濯など日々の家事がしやすい動線です。(写真右)
変わらない心地よさを再現・モデルハウス「tie+」 札幌市北区屯田

ファミリークローゼット→ユーティリティ→2Fホールにつながる回遊動線 札幌市T邸/ケイアイの家



2階ホール。通路に面して手前から順にファミリークローゼットへの出入り口、洗面化粧台、ユーティリティーへの出入り口、突き当りに洋室のドアが配置されています。



左・家族の衣類が収まっているファミリークローゼット。奥を曲がるとユーティリティにつながっています。
右・クローゼットの出口から見たユーティリティ。物干しスペースも付けた、ゆったりとした空間です。家事のしやすさを考え、奥さまが最もこだわったポイントです。洗濯機の横にあるドアからホールに出入りできる回遊式です。

奥さま 洗面化粧台がユーティリティにあると、使おうと思った時に、他の家族の入浴と重なる場面も考えられたので、いつでも気兼ねなく使えるように、ホールに設置してもらいました。

来客の際にも気軽に使ってもらえるし、帰宅後の手洗いもスムーズで、重宝しています。
仲間に紹介したくなる高性能で丁寧な家づくり 札幌市Tさん/ケイアイの家

車イス生活を想定したバリアフリー平屋住宅  札幌市H邸/瀧本ホーム



JR駅や幹線道路に近い住宅地に立つH邸は、60代の奥さまと70代のご主人が暮らす新居です。ご夫婦が新築したのは、老後の「車イスの生活」を想定したバリアフリー住宅。H邸は、玄関も含めて扉はすべて引き戸になっています。

LDKと寝室、水回りの動線は、車イスやシルバーカーで移動できる回遊式の間取りになっています。トイレ横の書斎を寝室として利用するなど、部屋の用途が変えられるうえ、水回りの扉を開け放てば車イスでも直線移動しやすい設計です



トイレと洗面、バスルームは書斎から続く一直線上に配置。「車イスで暮らす家に必要な要素を、すべて設計に反映しました」と瀧本社長が話すように、回遊動線のほかにも、最大で約130㎝とった開口部、2方向からアクセスできるトイレ・洗面所、玄関や水回りの手すりといった設計に、将来を考えた工夫が見られます。
車イス生活を想定した、セカンドライフを楽しむバリアフリー平屋住宅  札幌市H邸

キッチン・洗面室を軸に回遊できる便利な動線 札幌市S邸/キクザワ



プラン作成の段階で奥さまが伝えたのは、玄関から水回りに直接抜けられる動線にしたいこと、ダイニングテーブルをキッチンに横付けしたいこと、リビングの隣に小上がりがほしいことなどでした。
そこで玄関からLDK、水回りを回遊動線で結び、スムーズに動けるプランを採用しました。「家事がしやすく、子どもたちも喜んで走り回っています」と、奥さま。
性能もデザインも。夫婦がともに納得できた工務店との家づくり 札幌市S邸/キクザワ

2世代がそれぞれの暮らしのリズムを大切にできる回遊式の動線 札幌市/白田建築事務所



LDKを抜けご両親の寝室に向かう右手側にはユーティリティがあります。奥の引き戸から出入りができ、浴室・洗濯脱衣室・洗面室が一直線に配置されています。

手前の洗面室は玄関ホールにつながる回遊式で、お子さん世帯は主に玄関ホールから出入りをする動線。2世代がそれぞれの暮らしのリズムを大切にできる造りです。
換気排熱利用の融雪システム・採光が心地よい街中の一軒家 札幌市

回遊動線&家事楽設備で暮らしやすく 鹿追町O邸/カントリーヴィレッジ



O邸では動きたい盛りの子どもたちが走り回れるよう、また来客時にもスムーズに生活できるようにと回遊動線を採用しています。



左)普段はLDKの延長のように使っている和室。ご両親などが泊まりに来た際はLDKを通らずそのまま水回りや玄関へ行けるように設計しました。
右)玄関・シューズクロークからはそのままお風呂へ直行できる造りに。「子どもたちがどろんこになって帰ってきても安心です」(奥様)
回遊動線で快適 平屋のモダンハウス/鹿追町O邸 カントリーヴィレッジ

キッチンからの回遊動線で、移動と家事が楽に 千歳市H邸/生杉建設



キッチンからは
①三角の下がり壁のパントリー
②兄弟用のオープンクローゼット
③夫婦用のウォークスルークローゼット
④ユーティリティへの回遊動線
がつながっています。



画像左/①三角の下がり壁が付いたパントリーには、キッチン家電や冷凍庫を収めています。左手に兄弟用のオープンクローゼット、右手にユーティリティーが見えます。

画像右/②ホール突き当りに位置する兄弟用のオープンクローゼットの左右にはお子さんたちの個室を設けました。



画像左/③夫婦の寝室につながるウォークスルークローゼットは、ぐるっとまわってリビングにも出られる回遊式。通路と収納を兼用し、空間を有効に活用しています。

画像中央・右/④キッチンからの回遊でつながる水回りは、洗濯室側とユーティリティ側の2箇所から出入りできるのがポイントです。洗濯機のすぐ横には棚を置き、ここで衣類を畳んだり、ハンガーにかけたり一通りの洗濯作業が可能です。
家づくりのプロが建てた開放的な平屋の家 千歳市H邸/生杉建設

玄関ホールから2つのウォークスルークローゼットに分かれる収納動線 恵庭市F邸/キクザワ



Fさんご夫婦は子育てや家事がしやすい動線を追求し、通路をウォークスルークローゼットにし、動線上に収納機能を持たせる工夫にたどり着きました。



玄関ホール右手には、手前からシューズクローゼット、ウォークスルークローゼット①の出入り口が見えます。ウォークスルークローゼット①の奥のつきあたりには家族用のトイレの扉が。右手に折れるとシューズクローゼット、左手に行くとランドリー室につながっています。



玄関ホール左手は寝室につながるウォークスルークローゼット②に続いています。
寝室につながるウォークスルークローゼット②にはご夫婦の洋服が収まっています。ホールを介して向こう側にウォークスルークローゼット①が見えます。
ウォークスルークローゼットなど家事動線に優れた平屋の家 恵庭市F邸/株式会社キクザワ

玄関からダイレクトに浴室へとつながる動線 東神楽町Sさん/昭和木材



玄関ホールからは引戸を介して、左手にトイレ、右手にストック収納があり、ダイレクトに浴室へとつながる動線です。
奥さま 息子がサッカーをしているので、汚れたユニフォームのまま直接お風呂に入れるようにしてもらいました。



洗濯機上にはガス式の衣類乾燥機・乾太くんを備え、フラットな洗面化粧台や収納があります。ロールスクリーンはヘラジカやクマのデザインです。
チェッカーガラスを使った引戸を開くと、ダイニング・キッチンにつながる回遊動線になっています。
階段踊り場を活用した書斎とピアノスペースのある家 東神楽町Sさん/昭和木材

2方向に分かれる便利な回遊動線 札幌市Mさん/シノザキ建築事務所



洗面室から左に行くとランドリースペース。ガス式衣類乾燥機「乾太くん」をはじめ、洗濯物干し用のアイアンバーや収納棚が揃っています。ランドリースペースから玄関→リビングダイニング→キッチンへと抜けられます。



洗面室から右に進むと、キッチンがあり、ダイニング→玄関と移動できる2つ目の回遊動線になっています。

吹抜けリビングに回廊風階段・SE構法で大空間を実現 札幌市北区/M邸

共働き夫婦の暮らしに配慮した回遊プラン 北広島市Iさん/リビングワーク



I邸のこだわりは、共働きのご夫婦に配慮した、家事負担を助ける回遊動線です。玄関から洗面室→キッチン→リビング→ダイニングを巡ることができます。

ペンダントライトによって幻想的な模様が天井と壁に映し出された素敵な玄関ホール。ここが回遊動線の起点になっています。正面のドアはLDKへ、左側の引き戸を開けると洗面室、その先にお風呂とUTが続く水回りへとつながります。



「帰ってからリビングに入る前に手が洗える配置を希望しました」とIさん。娘さんにも手洗いの習慣をつけてほしいそう。造作の洗面台はワイドタイプになっており、帰宅後、親子で並んで“ただいま手洗い”ができます。
洗面の背面がキッチンに続きます。

「住み始めてみたら、思っていた以上に便利でした」と笑顔の奥さま。仕事から帰宅した後の限られた時間の中で、購入品の収納から食事の支度、洗濯など、室内をスムーズに移動でき、効率よく家事がこなせる動線が確保されています。
共働き夫婦の家事らくで心地よい家 北広島市I邸/リビングワーク

浴室やユーティリティを2階にまとめ生活動線を快適に 岩見沢市Fさん/拓友建設



2階には、主寝室と子ども部屋、バスルームやユーティリティー、お手洗いがあります。



趣味部屋を1階にしたことで、お風呂やユーティリティーなどの水回りが2階にまとまっているF邸。「住み始めてから、この動線の快適さに気づいた」とご夫婦は口を揃えます。
ご主人 起床してから仕事に出かけるまでの準備が、すべて2階で完了するのがありがたいですね。
奥さま 脱いだ服を洗濯して乾燥させ、主寝室のクローゼットに収納するまで、動線に無駄がありません。
施工会社と設計士のコラボで作り上げた、アクアリウムが主役の家 岩見沢市F邸

子育てのしやすさ、暮らしやすさを考えた生活導線のモデルハウス 石狩市モデルハウスrimo+/イネスホーム

デザインの良さはもちろんですが、イネスホームの住まいは、子育てのしやすさ、暮らしやすい生活動線の良さも、人気の理由。rimo+にも、そうした工夫が細部まで見られます。



キッチン横にはユーティリティーがあり、玄関ホール、リビングと回遊式につながっています。



玄関ホールから見たユーティリティー。ゆったりとした広さで、グレーを基調にした造作の洗面化粧台や、タオルや下着、洗剤などの収納に便利な可動棚を設けています。上部には物干しポールのほか、洗濯機の上にも、ピンチハンガーやタオル干しに便利なバー・タイプの収納棚を用意しました。
オン/オフしやすいリビング書斎のある大人可愛いモデルハウスrimo+ 石狩市

共働きご夫婦の生活動線を考えた玄関ホールと家事動線に優れた水回り 東神楽町Tさん/昭和木材



玄関には、外で身につけていた服や物を室内に持ち込まないで済むように、コートやスーツなどをすべて収納できるシューズクローゼットを作りました。帰宅後の感染症対策のため、ホールにも手洗いを設けています。

手洗いや外出時の身支度など、共働きのご夫婦の生活動線を考え、通路も広めにとりました。ユーティリティーなど、居室以外の場所もゆとりある設計です。



ユーティリティーはダイニングとキッチンの2方向から出入りできる回遊式です。4.5畳の広さがあり、奥さまの希望で洗面台横に専用ドレッサーを造作しています。
パーティールームのある共働き夫婦の家 東神楽町 Tさん/昭和木材

1階は身支度に便利な回遊動線 秋田県大仙市O邸/村上工務店



キッチン左奥の白い扉の先は、寝室です。寝室にはキッチン側とは別の扉があり、そのままウォークインクローゼットに続きます。そこからさらに洗面脱衣室やお風呂にもつながっていて、身支度がしやすい動線です。
洗面脱衣室からは、玄関ホール、リビングダイニング…と、1階を一巡できる回遊動線になっています。
記事はこちら シンプルな家にこだわりと工夫を詰めこむ 秋田県大仙市O邸/村上工務店

子供に目が行き届くオープンな間取りとホールとリビングを結ぶ2WAY動線 旭川市M邸/昭和木材



左/ニッチと建具に木を使った暖かみのある玄関ホール。リビングの端まで続く真っ直ぐな動線上には障害物が何もありません。ホール右側のドアからユーティリティを通り抜けてリビングに入るもう1つの動線も。「玄関からお風呂に直行できて便利」と奥様。手洗いの習慣も自然と身につきますね。

右/キッチンからリビングの隅々まで見渡せます。お子様が一人遊びしていても安心な間取り。「料理している妻と話が出来るので会話が絶えません」。ご主人も幸せそうです。
北欧モダンな街中のコンパクトハウス 旭川市・Mさん

家事効率が上がる回遊動線 札幌市I邸/アシストホーム



視線を気にせず作業に集中できるよう、見せる部分と見せない部分にメリハリをつけて設計されたキッチン。調理スペースはリビングから見えませんが、ちらりと見える調理台の背面には落ち着いたグレーのタイルがお洒落。ご家族の気配がほどよく感じられる、お料理好きな奥さまに嬉しいつくりです。

洗面所はキッチンとつながっていて、その先には脱衣所とお風呂がありました。脱衣所は扉付きなので、ここでもプライバシーはしっかりと守られています。収納スペースもたっぷり。造作の洗面台はブルーのタイルが目に鮮やかで、さわやかな印象です。

「水回りの行き来がしやすく、家事もしやすいですね。デザインも気に入っています」
1階だけで生活できる、40代夫婦の楽しい家/札幌・I邸/アシストホーム

玄関クロゼットから水回りにかけての便利な回遊動線がお気に入り 恵庭市S邸/キクザワ



玄関の左手にはホールを介して、洗面脱衣室とトイレに繋がるシューズクロゼットが。帰宅時はコートを掛けてそのまま洗面室へ。ピアノのレッスンに来る生徒さんも、リビングを通らずにトイレに行くことが出来る造りにしています。

トイレと浴室は平屋の増築部分に配置しており、シューズクロゼットを中心にした回遊動線が可能になりました。
リノベで実現!使いやすい動線と自然素材の心地よい家/恵庭市Sさん キクザワ

使い勝手を重視した回遊式の動線 札幌市K邸/ブレイン札幌



ユーティリティーは、玄関から続く廊下と、キッチン横に出入り口がある回遊式。帰宅後の手洗いがしやすく、お子さんのお風呂のお世話などもしやすい造りです。台所仕事をしながらの洗濯など、家事にも便利な動線になっています。
記事はこちら 光熱費の安さに感激!2階も床暖房の省エネな家 札幌市K邸/ブレイン札幌

一本で完結する時短動線 札幌市K邸/リビングワーク



「職場の同僚のお宅を拝見して、ぜひ採り入れたいと思いました」と奥さまが話してくださったのは、キッチン奥に配された約5畳大のウォークイン・クロゼットから、4畳大の洗面・洗濯室、脱衣室、浴室が一直線に並ぶ水回り・収納空間。平屋の暮らしをサポートする大きめの収納が水回りと隣接し、出勤時の動線に優れた間取りになっています。

洗濯・洗面室には可動式の物干しが付いていて、洗濯後はそのままここで干す作業ができます。乾いた洗濯物は写真奥にあるクロゼットにそのまま収納することができます。



洗面・洗濯室の横には脱衣室があり、タオルや下着などを収めるのに便利な可動棚も設置されています。脱ぐ→洗う→干す→仕舞うという動線が一本で完結する時短動線とゆとりのある収納計画で、家事楽で快適な暮らしが実現しそうです。
三角屋根を活かしたおおらかなLDKと時短動線がうれしい共働き夫婦の家/リビングワーク

ファミリークローゼット、洗面、風呂、キッチンがつながる回遊式の間取り 帯広市M邸/cubeチセ



洋室のファミリークローゼットはそのまま洗面所に通じています。洗面所にはふたつのシンクが並び、お子さんが成長して使う時間が長くなったり、ご両親と同居されることになったりしても安心。マリンランプも素敵です。
脱衣所の大きな棚は造作のもの。風呂場の左手はキッチンにつながる回遊式の間取りになっています。
記事はこちら 家族みんなで料理&ミニバレーもできるカントリーの家/帯広市M邸 cubeチセ

帰宅後すぐに手洗いや着替えを済ませてからリビングに向かえる回遊動線 江別市H邸/拓友建設



玄関から横に行くとLDKがありますが、まっすぐ進むと洗面室とユーティリティに直行できます。帰宅後すぐに手洗いができ、さらに進めば着替えなどを済ませてからリビングに入ることもできる回遊動線です。お子様が年頃になった時のために洗面室と脱衣室を分けて使える形にしました。
記事はこちら 住宅会社選びは性能とデザイン、そして「納得の回答」で 江別市・Hさん

ユーティリティ・キッチン・LDK・玄関ホールを巡る回遊動線 函館市K邸/マルサ佐藤建設



ユーティリティは以前より広い面積を確保。浴室の入り口は、出入りしやすいよう引き戸に変更しました。
奥に向かうとキッチンへと続き、そのままリビングダイニング、玄関ホールを巡る回遊動線になっています。
記事はこちら ニュータウンの築35年わが家が快適に大変身  函館市K邸/マルサ佐藤建設

暮らしやすさを叶える行き止まりのない回遊動線 秋田県大仙市S邸/村上工務店



間取りのポイントは、行き止まりがなく、動きやすい動線の確保です。キッチンの先にある左側の引き戸の向こうは、洗面・脱衣室。さらにその先には廊下に出られる扉があり、そのまま玄関ホールへと回遊できます。
記事はこちら 若い夫婦が木にこだわった本格和風 秋田県大仙市S邸/村上工務店


目次


2022年02月現在の情報です。詳細は各社公式サイト・電話等でご確認ください。

探したい地域はどちらですか?