Column いえズーム コラム

【十勝】女性の要望・夢を叶える家づくり10選


女性ならではの希望を反映した家づくりとは?

こんにちは!IEZOOM編集部です。IEZOOMでは、過去に、
『妻の理想』を叶える家づくり20のポイント 
【札幌】ママ目線でつくったマイホームの実例10選
【札幌】女性目線で家づくり~女性担当に相談できる住宅会社10選
などの記事で、女性(ママや妻)の視点から見た家づくりへの要望や、成功した体験談を特集してきました。

今回は十勝圏の実例から、女性のならではの希望を叶えた家づくりの成功例をご紹介します。

暮らしやすいデザインや機能に加え、オリジナリティを追求した住空間を

家事分担が比較的多く、家で過ごす時間も男性に比べて相対的に多い女性。子育て中のママなら特に、育児+家事の負担も大きく「暮らしやすさ」は重要なポイントになります。また、気分をあげてくれるデザインや、心地よい素材選び、自分らしく居られる空間づくりなども日々の暮らしの快適さにつながります。

・話やすく感覚を共有し合える女性担当者との家づくりで、センスがよく暮らしやすい住まい
・都市近郊に自然素材を使ったコンパクトな住宅を建ててスローライフを愉しむ
・海外旅行で得たインスピレーションを再現した唯一無二の地中海テイストの住宅
・Instagramで気に入ったイメージを採り入れた家事ラクでモダンな家
・「家が呼吸している」ような木の温もりを生かしたシックな二世帯住宅
・家族や友人が集うカフェのようなコの字型ダイニングが主役のLDK
・回遊動線で家事がしやすくデザインにもこだわった平屋建て
・すっと背筋の伸びる、ホテルに来たような気持ちになれるモダン住宅
・オリジナリティーと遊び心のあるデザインで毎日が楽しく過ごせるプラン

などなど、今回は十勝圏で女性ならではの希望を反映した家づくりの実例を、過去のIEZOOM取材記事から厳選してご紹介します。

選び抜いたものだけでつくる統一感あるインテリア 音更町N邸/ YOTUMOKU-side(ヨツモクサイド)



今回のリフォームの中で最も大きな要望だったのが、L字型になっていて使いづらく閉鎖的な空間となっていたキッチンの改善です。窓の外を見ながら調理できるスタイルはそのままに回遊式の構造にし、リビング側からも勝手口や風呂・洗面所からも移動しやすくなりました。

kitchenhouseのフルオーダーキッチンは、吉田社長と一緒に札幌のショールームまで行きプランニングしました。広島から職人が来て仕上げたというワークトップの長さは7.2m。家具のようにも感じられる木製の面材とゆとりのある空間づかいで、落ち着きのある印象になっています。

Nさん インテリアは組み合わせが無数にあるので迷いました。統一感が出たのはコーディネーターの片山さんのおかげです。こちらの好みをきちんと把握して、膨大な数の品物の中からいくつか選んで提案してくれるんです。その中から選んでいけば自然と好みのスタイルにまとまる、というのはありがたかったですね。事務所のインテリアも素敵で、「家でもこれを使いたい」と思えるものがたくさんありました。



洗面所は、洗面台・鏡ともにオリジナルで造作しました。天板は傷に強くメンテナンス性に優れたセラミック製。鏡の中は収納になっています。

「洗面ボウルはフラットで薄く、面積の広いものが良かったんです。色々探してもらってこれにたどり着きました」という洗面ボウルはKALDEWEI社、水栓はDELTA社の輸入品。選び抜いたものだけで造った品のある空間になりました。
記事はこちら ヨツモクさんでキッチン・洗面台のこだわりリフォーム実現! /音更町Nさん

好きなインテリアと暮らしやすい間取りを叶えた家 池田町O邸/赤坂建設



今回伺ったのは、池田町の広々とした牧草地の中に建つO邸、酪農家のご夫婦と3人のお子さんで暮らしています。設計・施工は、同じ池田町で創業して今年で110年になる赤坂建設、担当は高山辰也さんです。

「家の中で気に入っている場所ですか? やっぱりキッチンですね」
そう案内いただいたキッチンはグレーのクロスに黒のワークトップと造作の木製食器棚が映え、シックな中に優しさを感じさせる雰囲気。
コンロ前のオイルガードは壁にガラスを入れ、油はねをしっかりと遮りつつ視線がリビングまで通る造りです。
コンロにはフライパンや鍋などを3つ並べて調理できるパナソニックのトリプルワイドIHを採用、使い勝手も抜群だといいます。



照明や壁紙は、札幌や帯広のショールームまで高山さんと足を運び、質感や明るさを確かめながら選んだもの。
光の広がり方など、カタログやネットで見るだけでは分からない部分もしっかり確認した納得の仕上がりです。



こちらは勝手口の玄関。ここで手を洗って作業着を脱ぎ、お風呂に直行できる間取りになっています。
「インテリアと並ぶ大きな要望のひとつが、暮らしやすい間取りでした。最初に決めたのが勝手口の位置。牛舎に近く、出入りしやすい場所に作ってあるので毎日活躍しています」(奥様)



間取りやインテリアを主に考えた奥様はもちろん、ご主人やお子さんも「リビングでソファにもたれながら『最高だな』とよく言っています」(奥様)と大満足とのこと。一棟一棟に惜しみなく時間をかける赤坂建設だからこそ叶った、納得のマイホームになりました。
記事はこちら 牧草地の眺めが絶景!ナチュラルモダンの農家住宅/池田町Oさん

女性スタッフならではの提案力で希望の家を実現 芽室町S邸/ティーメイス



数ある住宅会社の中から、帯広のティーメイスを選んだ決め手について「参加した内覧会でティーメイスの家と出会って、ほとんど一目惚れでした。ブラックアイアンを使ったブルックリンスタイルのデザインがとても素敵で、事務所もセンスが抜群。お願いするならティーメイスさんと心に決めていました」とSさんご夫婦。



パントリーはティーメイスからの提案でキッチン裏に作りました。扉もなくスッと入れるのに表からは見えない絶妙な位置。「いわゆる見せる収納は維持しづらいですがこれなら安心」と、ご主人も大満足の仕上がりになりました。



寝室だった部屋はPCスペースの他、5人分の洗濯物も余裕で干せるサンルーム(写真左)とクローゼット(写真右)に。専用スペースを用意したので洗濯物が人目に触れず、室内をいつでも美しく保つことができます。



実際の打合せの印象については「社長の本間さんもスタッフの大野さんも女性で、女性同士で話せる安心感が大きかったです。コンセントの位置やパントリーの棚の位置、キッチンの仕様など、細かな部分で女性目線でのアイデアを盛り込んでもらえたことが、実際の暮らしやすさにつながっていると思います」と奥さま。女性ならではのセンスや提案、細やかな配慮によって、希望の住まいが完成しました。
記事はこちら 二世帯住宅をリフォームで「新築以上」の我が家に/芽室町S邸 ティーメイス

奥さまの夢だったスローライフな家づくり 帯広市S邸/水野建設



Sさんはキャンプが趣味のご主人とナチュラルな暮らしを望む奥様、育ち盛りの野球少年の3人家族。水野建設で「飽きがこない家」と語るミニマムスタイルの自宅を実現しました。カラマツ外壁が主役のシンプルな外観。住宅と並んで存在感を放っているのは、同時に作った物置兼カーポートです。住宅、カーポート双方の屋根に太陽光パネルを設置しています。



家庭菜園へのアクセスを考え、キッチンには庭に続く勝手口を設けました。



「元々、自然やキャンプが好きで、スローライフに対する憧れがあったんです。一方では仕事や子育てといった現実もあり、自然を感じられる暮らしや手作りの豊かさはなかなか手の届かない理想でした。薪ストーブに火がともり、自然素材に包み込まれるような水野さんの家は、買い物や通勤・通学、といった日常生活の利便性も大切にしながら理想が叶うと感じ、依頼を決めました。

『小さく建てて大きく暮らす』というキャッチコピーのとおりの家だなと。シンプルな造りで無駄が少ないので広々と感じられるし、可変性もあるので、子どもの成長などによってライフスタイルが変わっても安心です」。念願の薪ストーブを前に「お酒を飲みながらここでぼんやり過ごすのがいい」とご主人も満足そうです。
記事はこちら 市街地で叶えるスローライフ/帯広市S邸 水野建設

家事ラクと理想のインテリアを実現 帯広市N邸/イゼンホーム



イゼンホーム社員時代は現場や完成住宅見学会の会場で働くこともあったという奥様。農家のお客さんも多かったため、当時から”農家住宅の動線”についてはある程度イメージがあったそうです。キッチンはTOTO『ザ・クラッソ』のアイランドキッチン。ダイニングテーブルは家具職人であるご主人の妹さんが製作したものです。



農家を営むNさん宅には家族用の玄関(勝手口)も設けており、畑仕事を終え帰宅した際に、勝手口に設置したSKシンクや洗濯機でまず衣類が洗えるようになっています。勝手口から洗面、お風呂場までは一直線なので、お風呂に入って汚れと疲れをさっぱりオフにしてからリビングでくつろぐことができます。

お風呂でさっぱりした後は着替えを。洗濯・物干しスペースも兼ねた脱衣所の隣にはウォークインクローゼットが配置されており、入浴のための着替えの準備や洗濯後の洋服の片付けがスムーズにできるようになっています。クローゼットは寝室ともつながっているため、着替えのための移動は最小限で済みそうです。



家のデザインの中心となっているのが、Instagramで一目惚れしたイメージを再現したという木とアイアンの階段です。当初は、家全体を可愛らしい三角屋根で、カフェ風のデザインにしようと思っていましたが、この階段のデザインが大変良かったので、家全体のデザインも、アイアンや真鍮などのアイテムを加え、シックな印象に変更しました。

階段のデザインやクロス、照明、スイッチなどさまざまな部材について、インターネットなどでじっくり調べたものを取り入れることができ「自由に、思い通りに仕上げることができました」と”お気に入り”が詰まった我が家に満足されているようです。
記事はこちら 住宅会社勤務の経験を活かした要望満載の「家事楽」な農家住宅 帯広市N邸/イゼンホーム

女性社長を中心に丁寧な提案と打合せで叶えたマイホーム 帯広市H邸/Cryptn(クリプトン)



奥さま まず私が住みたい家の要望を竹市社長が詳しく聞いてくれました。特に「陽射しがよく入る明るいおうち」「薪ストーブ」「カーポート」「断熱性能」「ウッドデッキ」「間接照明」「一階寝室」「十分な収納」などを要望したと思います。私の要望を踏まえて竹市社長が2案ほど提案してくれて、そのうえで細かく、丁寧に打合せをしてくれたんです。打合せは10回以上したと思います。



アイランドキッチンを選んだのは、リビングにいる娘と話したり、テレビを観ながら料理をしたりしたいと思ったからです。キッチンの背面収納は、タカラスタンダードのカップボードと、大工さんや建具屋さんが造作で作ってくれたオーダー品が組みあわさっています。ワインを収納できる専用棚も付けてもらいました。ここにも間接照明をつけてもらいました。

子ども部屋は2階にありますが、勉強はリビングでしています。寝室も1階にあるので、実は2階はほとんど使っていません。寝室を1階にすると1階部分の面積が増えてしまうので予算との兼ね合いで迷いましたが、結果は1階に寝室を置いて大正解でした。

Cryptn(クリプトン)さんはデザインも性能もしっかりしている住宅会社だと思います。新築後1年目の定期メンテナンスでも、クロスの部分的な隙間や基礎廻りなど細かな手直しも丁寧に対応してくれました。いろんな要望をたくさん伝えて、何度も打合せをしていただいたのでご迷惑おかけしたかなと恐縮しています。そのぶん希望がたくさん叶って、納得できて、後悔している部分は全くありません。友人知人もこの家をとても褒めてくれます。
記事はこちら デザイン・住宅性能の要望を丁寧に実現。友人も絶賛する工務店とは? 帯広市・H邸/Cryptn(クリプトン)

シックなデザイン&料理も楽しい二世帯住宅 帯広市M邸/プラスワイド(PLUS WIDE)



Mさん 住宅会社を探している時は、母と娘で見学に行きました。住宅展示場などで10軒くらいは見ましたね。でも、プラスワイドの家を見学したらすぐに心が決まってしまって。アレルギー体質なので、新しい住宅を見に行くと目がシバシバしたり、臭いが気になったりすることが多いのですが、プラスワイドの家はそれが一切なかったんです。入った瞬間に、ほどよく家が呼吸しているような感覚があり、敏感な自分も楽に過ごせるのが気に入りました。自由にお願いできる造作にも惹かれました。



情報収集は、完成見学会などへ足を運ぶほかは、主にインターネットで情報収集をしていました。iezoomも見ていましたよ。間取りなどは自分の中でイメージがあったので、自分で作った図面を清水社長に見てもらって、相談しながら作りました。清水社長がしっかりと話を聴いてくださったおかげで、家族の暮らしにしっかりとフィットした家になったと思います。大工さんもすごくいい方で、猫がデッキの下で子どもを産まないようにデッキの縁を囲ったりと配慮もしてくださって……。細かなこだわりも造作で叶えてもらい、住み心地のとてもいい家になりました。
記事はこちら シックなデザイン&料理も楽しい二世帯住宅/帯広市M邸

デザイン、住み心地、住宅会社、満足度100%の家づくり 帯広市N邸/ウッドライフ



LDKの扉を開けた先に広がっていたのは、ハッと息を飲むような空間。「間取りよりも先にキッチンの形を決めた」という奥様こだわりのオープンキッチンです。キッチンと作業台、ダイニングテーブルがコの字型につながったキッチンは、天板だけでなく内部も手作り家具のFARMER’Sにオーダー。幅や高さを細かく指定し、電子レンジや炊飯器などの家電もすべて中に収まっているため、雑多な生活の匂いを感じさせません。



奥さま キッチンの形とリビングの広さ、それから夫の仕事場についての希望は最初に伝えていました。間取りは相談しながら決めましたね。イメージどおりのデザインにしたくて、ネットで見た好きなデザインを撮りためて、写真をたくさん持っていきました。打ち合わせの数は数え切れないです(笑)

(担当だった富原社長は)何でも希望を聞いてくれたんです。デザインの細かな部分も「こういうのできますか?」と聞くと「できるよ!」って。例えば天井と壁の廻り縁(境の部分)の色が白色で、そこだけ浮いている感じがして気になる、と伝えたら改めて塗装してくれて。物置の取っ手も塗ってもらいました。洗面所の鏡も、額縁みたいにしたいと言ったら枠を手作りしてくれましたね。そういう細かなこだわりを一緒になって考えて、叶えてくれる。本当の意味で家全体がオーダーメイドなんです。何でも話せて、家づくりが楽しくなるような関係を築けたことも大きかったです。
記事はこちら 「コの字型キッチン」に満足度100% /帯広市N邸 ウッドライフ

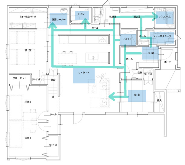
充実収納と快適動線のモダンハウス 鹿追町O邸/カントリーヴィレッジ



インテリアは「生活感なくすっきりと」を徹底。ロフトつきの平屋であるO邸。ロフト部分の床見切りには薄手のものを使用するなど細かな工夫がされています。キッチンはレンジフードまで黒で揃え、モダンでシャープな印象に。ダイニングは、料理の配膳がしやすいよう横並びにしました。



O邸では動きたい盛りの子どもたちが走り回れるよう、また来客時にもスムーズに生活できるようにと回遊動線を採用しています。玄関・シューズクロークからはそのままお風呂へ直行できる造りに。「子どもたちがどろんこになって帰ってきても安心です」と奥様。

「家づくりについては工務店まかせではなく、自分たちで考える部分を大事にしたいと思っていました。市販のソフトでパースを作ってみたのは、イメージを固めるのに役立ちましたね。朝日社長は意見を押し付けず、建主の考えを尊重してくれるタイプ。何でも相談できたことが満足度の高さにつながったと思います。

キッチン収納や、洗面、トイレ、洗濯脱衣などの備え付けの収納は、しっかり見た目もこだわりたかったので全て造作してもらいました。八木さんに扉の開き方や、収納部分のサイズなど細かいところまで綿密に計算して作っていただいたので、おしゃれなだけでなくとても使いやすくて満足しています」。
記事はこちら 回遊動線で快適 平屋のモダンハウス/鹿追町O邸 カントリーヴィレッジ

大家族が暮らしやすいホテルライクな家 帯広市U邸/高坂ホーム



Uさんファミリーはご夫婦と4人のお子さんの6人家族。帯広市の人気エリアに建てられたU邸は、子育てのしやすさと洗練されたホテルライクな空間とを両立させたこだわりのお家。5年もの歳月をかけ納得の家づくりができたそうです。1階の大部分を占めるのが「家族の会話が増えるように」と開放的な造りにしたLDK。家族がそれぞれのことをしながらひとつになれる空間を叶えました。



「すっと背筋の伸びるような、ホテルに来たような気持ちになれる家にしたかった」と奥様。最もこだわったというキッチンは、水晶をちりばめたタカラの黒いクォーツストーンのワークトップです。白い大理石調の床によく映え、全く生活感を感じさせません。キッチンの後ろには子どもたちが勉強したり、家事の合間に座ってパソコンを使ったりできる小さなデスクも。ダイニングが散らからない工夫がされています。

壁面収納については「この家に住む前から、これはここに置く、と置き場が決まっていました」と奥様。家と一緒にオーダーメイドで造ってもらうことで、既成のものを購入するよりも使い勝手がよく、物がぴったりと収まる仕様になりました。さらに予算の面でもうれしい結果となり、浮いた予算をキッチンのグレードアップに回せたそうです。



U邸は、小さなお子さんが4人もいて、おもちゃや勉強道具などもたくさんあるのに、全く雑然とした印象がありません。その理由は、ライフスタイルを考え抜いた結果生まれた「快適さを生み出すデザイン」。例えば学校から帰宅したお子さんが荷物を置くのは玄関近くの収納。ここに上着からランドセルまで、持ち帰った全てを片付けてしまいます。ランドセルから宿題を出したお子さんはすぐ隣の扉からダイニングへ。奥様が見守る中で宿題をするという流れがとてもスムーズです。
記事はこちら 「快適だから、美しい」ホテルライクな家 帯広市 /U邸 高坂ホーム

ママ友も大絶賛の遊び心&デザインの家 帯広市S邸/Cryptn(クリプトン)



奥さま かっこよさに加え、オリジナリティーと遊び心のあるデザインに惹かれました。最初は見た目がすべてで、性能もしっかりしていることを知ったのは建てることを決めた後ですね。

写真左/本好きのお子さんのために、左側には壁一面の本棚、右側にはおもちゃで遊べる小部屋。その上はスキップフロアになっていて、ピアノの練習スペースがあります。

写真右/LDK隣に設けられスキップフロア。上はピアノ室、下はキッズスペースとして使用されています。いつもの練習風景も、くり抜かれた壁の向こうに見えることでまるで舞台で弾いているかのような印象的なシーンに。奥様の誕生日にはお嬢さんがピアノの演奏を披露するなど、音楽のある日常を楽しく演出してくれる空間となっています。



キッチンは調理スペースに余裕があり、二人向かい合って作業できる形。お子さんたちは、お母さんの近くで勉強したいのでダイニングで勉強するご家庭も多いと思います。すると、夕食時に綺麗に片付けをしないと食事ができない・・・。そこで、S邸では、キッチン前に専用のカウンターを設けました。



奥さま この家は洗濯機から乾燥室、そして外の物干しスペースまでが一直線。ファミリークローゼットも二階ではなく、洗濯動線上に作ったので移動が苦でなく、家事が楽しくなりました。



アクセントクロスを多様し、部屋ごとに違った雰囲気を楽しめるのもS邸の大きな魅力です。二階ホールの壁面には絵を描けるボードも設置、家族のお気に入りの場所になっています。

設計した古市淳也専務と担当の中川真理子室長について奥さまは「お二人とも気さくで話しやすく、要望が伝えやすかったです。大抵のことは『いいよ』と言ってくれましたし、叶えられない要望はしっかりと代案を出してくれて。指摘されて『そっちの方がいいな』と気づくことも多く、さすがプロという感じでした」と話します。気になるイメージやアイデアはすぐにLINEで画像を送信するなど、情報共有もスムーズだったそう。
記事はこちら 「遊び心」と「デザイン」が魅力!ママ友にも評判の住宅会社とは?帯広市S邸

今回は、帯広圏で女性の要望や夢を叶えた住宅実例を厳選してご紹介しました。家に居る時間が男性よりも比較的長い女性だからこそ、マイホームには隅々まで希望を反映させたいものですよね。デザインの良さ、使いやすさ、気分が上がる仕立てなど、様々な工夫やアイデアを、是非家づくりの参考にしてくださいね。


目次


2022年04月現在の情報です。詳細は各社公式サイト・電話等でご確認ください。

探したい地域はどちらですか?