Story 取材記事

ウォークスルークローゼットなど家事動線に優れた平屋の家 恵庭市F邸/株式会社キクザワ

ここ数年、世代を問わず人気が出ている「平屋建て」は、暮らしやすさやメンテナンスのしやすさから、子育て世代にも希望する人が増えています。


F邸外観。外壁にはダークブラウンの石目調のサイディングを採用。玄関の木のルーバーでより上品な印象。上部にはロフト部分が見えている


キクザワさんで平屋建てを新築したFさんもその一人。家事動線に優れた間取りや、ウォークスルーの収納など、共働きで子育てをするご夫婦ならではの工夫が満載。詳しくお話をうかがいました。


「永く暮らせる家」を求め平屋建てに



Fさんは共に仕事を持つ30代後半のご夫婦と、2歳と1歳になる2人の娘さんの4人家族。2LDKのアパートに住んでいましたが、収納が少なく、手狭になったことや、RC造で寒さやカビなどの問題もあったことから新築一戸建てを考えるようになりました。

「子どもはいずれ巣立つものだから、2階に子ども部屋は必要ない」「年を取ったら階段の上り下りが億劫」「ワンフロアは掃除がしやすい」などの理由から、平屋建てを希望したそう。

Fさん「廊下を極力減らし、ドアではなく引き戸を採用して、無駄な空間をつくらないように心掛けました」。

玄関ホールから2方向に分かれる収納動線

Fさんご夫婦は子育てや家事がしやすい動線を追求し、通路をウォークスルークローゼットにし、動線上に収納機能を持たせる工夫にたどり着きました。


F邸・玄関ホールから続く動線の流れ


玄関ホール右手



玄関ホール右手には、手前からシューズクローゼット、ウォークスルークローゼット①の出入り口が見えます。ウォークスルークローゼット①の奥のつきあたりには家族用のトイレの扉が。右手に折れるとシューズクローゼット、左手に行くとランドリー室につながっています。

玄関ホール左手



玄関ホール左手は寝室につながるウォークスルークローゼット②に続いています。




寝室の左手前には来客専用の手洗いとトイレを希望しました。寝室からも近く、夜のおトイレにも便利です。おもてなしの心を感じるラグジュアリーな空間に仕上がっています。「ここは来客用なのでクロスやタイルなどにもこだわりました」とFさん。トイレはアクセントボードの背面に間接照明を設置、見えないトイレットペーパー収納にもなっています。



寝室につながるウォークスルークローゼット②にはご夫婦の洋服が収まっています。ホールを介して向こう側にウォークスルークローゼット①が見えます。



寝室にはベッドが二つ。間接照明付きのベッドヘッドには、スマートフォンの充電などに便利なコンセントも付いています。



ベッドの左手には書斎コーナーが。大容量の本棚も付いていて、落ち着いて作業に取り組めるスペースになりました。

ロフトが付いたおおらかなLDK

吹抜のLDKは、南に面した大きな窓から光が降り注ぐ、開放的で明るい空間になりました。



配線を見えないように施工したテレビ壁面。壁一面にすっきり収まっているテレビ台は造作によるもので、ホームシアターが楽しめるリビングはご主人の希望でした。



ダイニング上には約6畳のロフトを希望しました。お子さんたちの勉強スペースや遊び場として使う予定なのだそう。



ダイニングの窓辺には便利な造作カウンターを設置。袖机やプリンター台などの収納家具もすべて大工さんの造作です。



キッチンに立つと、LDKが見渡せます。ガラスの照明器具は奥さまお気に入りの一品です。



メーカーのキッチンに合わせ、背面収納はすべて造作によるもので、希望の大きさや配置が叶いました。



吊戸棚の右端にはティッシュペーパーが引き出せる口が付いています。ちょっとした汚れの拭き取りに重宝しているそう。



ガスレンジの壁面やワークトップ前の立ち上がり壁にはシックなタイルを使っています。

ダイニングキッチンに隣接した子ども部屋



奥さまの希望でダイニング壁面のニッチには、ホワイトボードが置ける棚と、スマホの充電や家電のコントローラーが置けるコンセント付きラックを設置。お子さんの写真やカレンダーを飾ったり、必要なメモを書き込んだりするのに大活躍。家電のコントローラーも一カ所に集まっているので使いやすいそうです。



ニッチの両隣の引き戸の向こうは子ども部屋になっています。1室が6畳ずつある部屋をオープンに使用中。今はマットを敷いて本格的なプレイルームとして使っていて、家の中でものびのびと遊ぶことが出来ます。キッチンからも目が届く距離感も安心です。

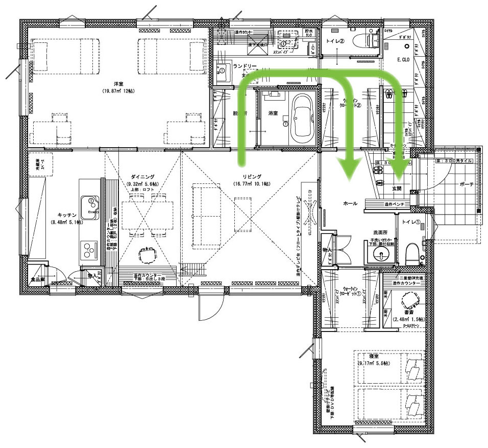
リビングから出入りする回遊式の水回りで家事楽を実現


LDKから脱衣・浴室、ランドリールームへとつながる動線図


奥さまが特にこだわったのはリビングから出入りできる水回りの動線でした。



奥さま「リビングから出入りできる脱衣室で服を脱ぎ、すぐにお風呂に入ることができます。脱衣室には入浴後の着替えやタオルが収納できる引き出しをつくってもらいました。子どもたちがまだ小さいので、とても助かっています。洗濯に出す服を一時保管できるバスケットや、ハンガーが掛けられるバーも設置してもらいました」。



脱衣室の奥はランドリールームになっています。入ってすぐのところには家族専用の洗面化粧台が。その横にはタオルを掛けて干すことが出来るヒーターが付いています。その熱を利用して、下着や靴下が干せるピンチハンガーが吊るされています。

窓のある壁面にはアイロンがけや洗濯物を畳むのに便利な作業台を設置しました。洗濯機に加えて奥さまが気に入っているのがガス乾燥機の「乾太くん」。洗濯→乾燥→畳む・アイロンがけまでを一カ所でできる理想のスペースになりました。



ランドリールーム横、ウォークインクローゼットに面した家族専用のトイレは、まだ小さいお子さんのために足台をつけてもらいました。

担当者の人柄や感謝祭も依頼の決め手に



当初から断熱・気密がしっかりした住宅を希望していたFさんでしたが、大手ハウスメーカーで話を聞いても、住宅性能に満足できる会社が見つかりませんでした。そんな折、知人の紹介でキクザワ施工の完成現場を見学する機会があり、気持ちが動いたと言います。


Fさんも自宅にロフトを実現している


Fさん「平屋の一戸建てで、勾配屋根のリビングにロフトが付いた住宅でした。それまではモダンなテイストが好みでしたが、天然素材をふんだんに使った温もりのある内装や、断熱・気密性能の高さに心惹かれました。

他社さんでは来月になると価格が上がってしまうとか、他のお客さまが控えているなど、決断を急かされることがありましたが、担当の菊澤久志部長は、まったくそういったことがなく、商売っ気の無さと、こちらに寄り添ってくれる真摯な姿勢に信頼がおけました。

また、毎年恒例の「お客さま感謝祭」に参加したことも大きかったですね。毎年あんなに盛大なお祭りをオーナーのために招待制で開催できるのは、経営がしっかりしていて、アフターフォローにも自信があるからできることだと感じました」。

記者の目

旦那さまも家事や子育てに協力的なFさんご夫婦。奥さまは産休が明けたら勤務を再開されるそうですが、これだけしっかりと計画された住まいなら、お仕事と家事の両立も心配なさそうです。広々とした新居で元気いっぱい遊ぶ娘さんの姿も印象的でした。

F邸の仕様



UA値 0.20W/(m2K)
C値 0.24cm2/m2
建築面積 108.55m2(32.83坪)        
延床面積 104.95m2(31.74坪)
壁の断熱
高密度グラスウール32K・140mm + フェノールフォーム50mm
基礎断熱 ビーズ法ポリエチレンフォーム断熱材1号120mm
土間下断熱 ビーズ法ポリエチレンフォーム断熱材1号60mm
天井断熱 ロックウールブローイング500mm
YKKap APW430 ダブルLOW-Eトリプルガラス(アルゴンガス入り)
暖房方式 ハイブリッド給湯・暖房システム 温水セントラルヒーティング
換気方式 第3種換気
その他 耐震等級3

2020年05月現在の情報です。詳細は各社公式サイト・電話等でご確認ください。

<h2 class="p-title p-title-05">株式会社キクザワの取材記事</h2>