Story 取材記事

狭小間口に建つスタイリッシュな家「LIVPLUS SMART」(リヴプラス スマート)/リヴスタイル


スマートサイズでも遊べる暮らし

シンプルで高性能+高品質が特徴のLIVPLUS(リヴプラス)の居心地の良さはそのままに、さらにスリムになった「LIVPLUS SMART」(リヴプラス スマート)が誕生しました。



「LIVPLUS SMART」は建物の間口(幅)が3.5間(約6.3m)で奥行きがある少し縦長なプラン。間口が小さめのスマートな土地にも建てやすいサイズになっています。



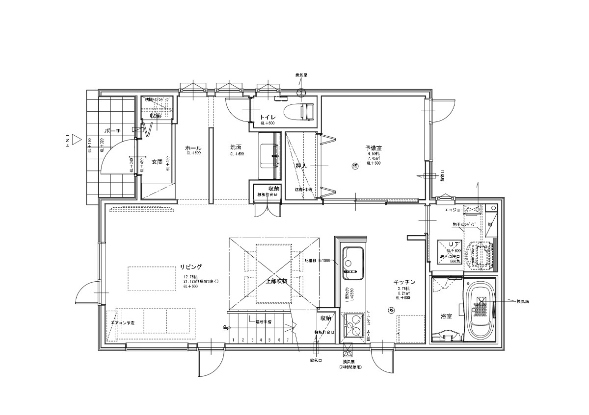
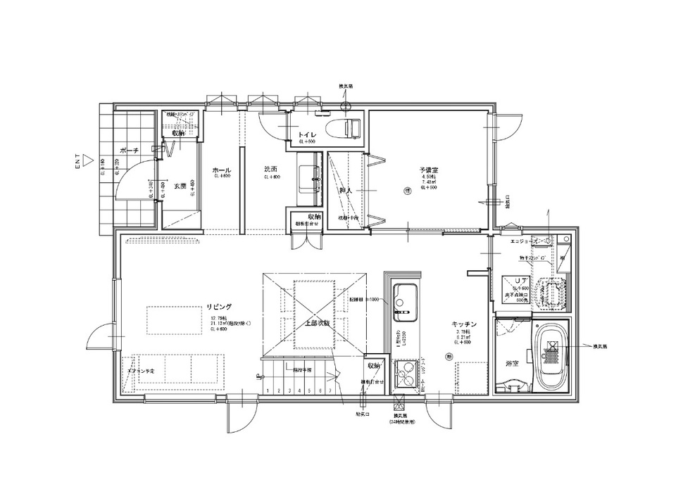
1階のキッチン横に予備室を確保した4LDKプラン。子どもたちのプレイルーム、趣味の部屋やリモートワークスペース、来客用の就寝スペースなど、いろんな使い方がありそうです。

家族が一番長く過ごすLDKは、吹き抜けのダイニングを中心に伸びやかな空間が広がります。スリムになっても、居心地の良さはそのまま。

ライフスタイルに合わせてカスタマイズ



予備室からは裏庭に出ることができ、ステイホームでも人目を気にせずアウトドアが楽しめます。基本プランは土間を広く取った遊びのある3LDK。ライフスタイルに合わせてカスタマイズが可能です。

内装はヴィンテージ感のあるカフェをイメージ。キッチンにはチョークアートが楽しめる黒板クロスや、サブウェイタイルをあしらいました。



あたたかい、高断熱・高気密の家

LIVPLUS SMARTは高断熱・高気密住宅。二重断熱で暖房費も抑えられる札幌のスマート省エネルギー住宅です。



土地のサイズに合わせ柔軟にプランし、自分たちにちょうどいい暮らしを実現する家。LIVPLUS SMARTはスタイリッシュでかしこい家のかたちです。


1階


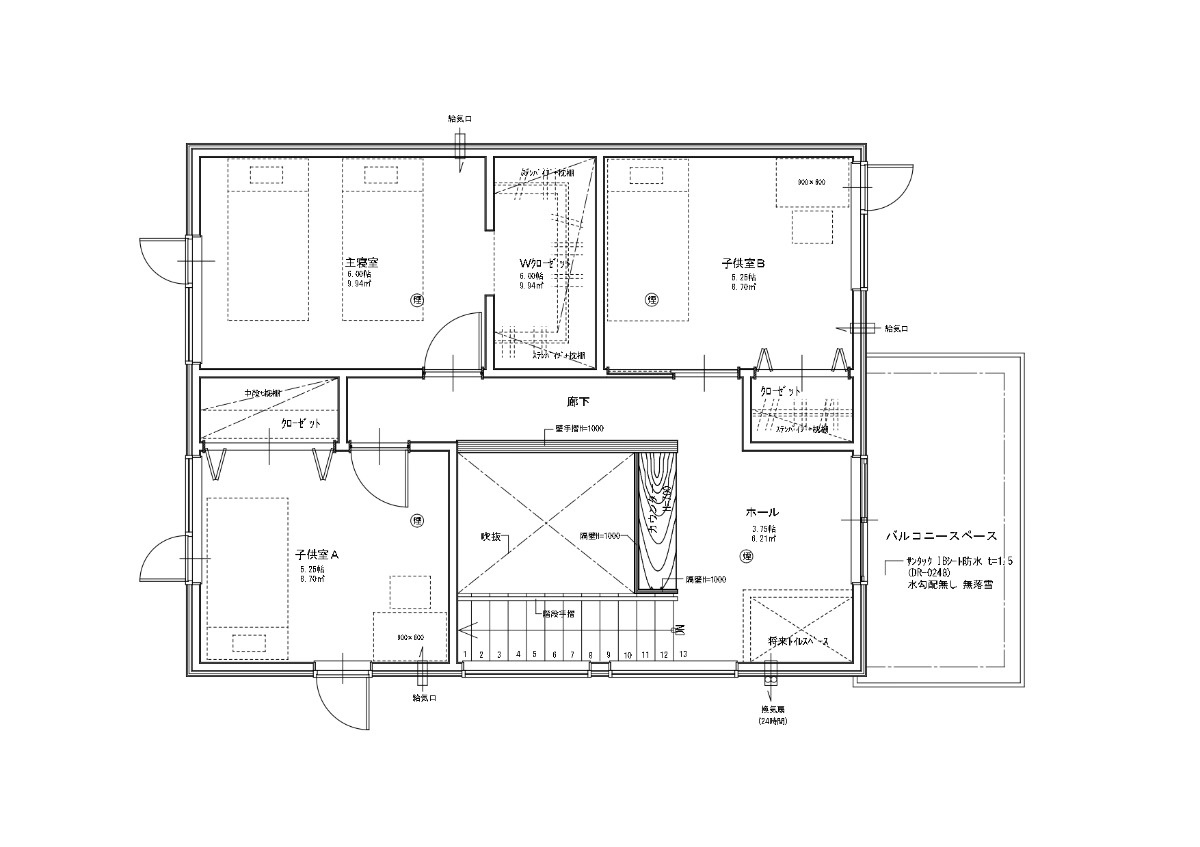
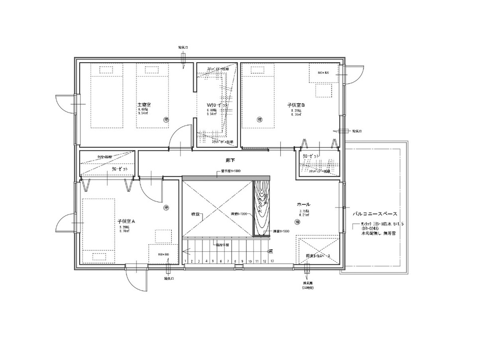
2階

2020年10月現在の情報です。詳細は各社公式サイト・電話等でご確認ください。

<h2 class="p-title p-title-05">株式会社リヴスタイルの取材記事</h2>