Story 取材記事

家全体がいつも25℃!省エネ&快適な住まい 弘前市K邸/小野住建


青森県弘前市在住のKさんは、建設資材販売などのお仕事をしているので青森県内の住宅会社の特徴、実力などを詳しく知っています。そのKさんが我が家を建てる際、指名したのが弘前市の隣町・平川市の工務店・小野住建でした。



外装材は耐久性、デザイン性を重視してガルバリウム鋼板を採用。総二階の真四角で均整の取れたモダンデザインは、限られた敷地面積に対し最大限大きな家を建てられる合理的な設計です。



玄関まわりは不燃の木の外装材を採用。ナチュラルな風合いが程よいアクセントになっています。




玄関ホールはロードバイクを壁掛け保管できる工夫も。

1階の床材はブラックウォールナット。重厚感、耐久性の高さ、素足での気持ちが良い肌触り、狂いが少ない無垢材で年数を経るごとに風合いが増すため人気の無垢材です。Kさんが重視したポイントの一つです。



子どもたちは帰宅するとリビングを通ってから子ども部屋にいきます。リビング階段は、お子さんの成長を見守りたいお母さんの思いを踏まえてプランしました。



調理中も家族とのコミュニケーションを大事にしたいという思いから対面型キッチンとキッチンカウンターを設けました。クリナップのキッチンは使いやすさ、そして丈夫で長持ちする点が魅力で、奥さまとショールーム見学なども含め検討を重ねて採用しました。



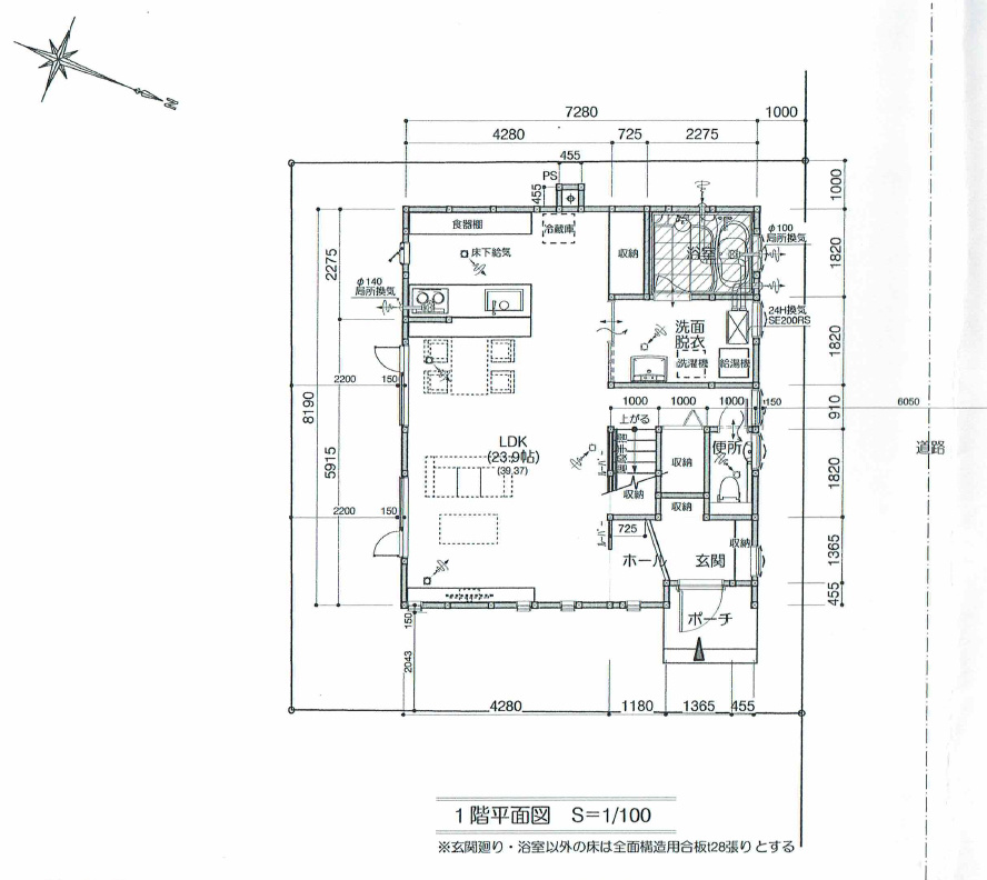
1階の平面図です。仕事柄住宅の図面を書くことも多いというKさん。これまでの経験も活かし、基本設計は建て主自ら作成し、小野照文社長に提出しました。

総2階の家はLDKや玄関ホール、浴室など1階に配置したいものが多く、1階のプランニングは工夫が必要です。



「限りあるスペースの中でいかに住みやすくするかは思案のしどころでした。キッチンの横に収納棚を設けたのは、来客からは見えない場所だから。当初は吹き抜けも検討しましたが2階の子ども部屋の確保を優先しました」とKさんは振り返ります。



ネコちゃんたちの住み心地も踏まえて…



階段下のニッチスペースにトイレを配置。
小野社長のアイデアで階段部分の壁、柱へブラックウォールナットの床材を施工。



階段ホールには窓がないと暗くなりがち。小野社長のアイデアで、玄関ホールとの間の壁にガラスブロックを設置しました。



2階は子ども部屋が2室と主寝室があります。

ではKさんに家づくりの経緯を伺います。

家を建てたきっかけは?



Kさん 以前は弘前市内の賃貸住宅(平屋の戸建て住宅)に住んでいたのですが、子どもが成長してきて子育て環境を良くしたいという思いと、家が寒いという点を何とかしたいと思ったのがきっかけです。

住宅会社選びは?



Kさん 住宅業界で働いているので、小野住建さんが新住協の活動を通じて住宅の断熱気密性能に関して優れた技術、知識を持っているのは知っていました。

家を建てる際に大事なことは、デザインなど見た目の部分や建築費の安さ以上に、省エネ性能を高めて光熱費負担を減らすことで、今後何十年と住み続けた際のトータルコストを考え、そして暖かく快適な住み心地だと思っています。なので小野住建さんを選んだんです。

家づくりの打ち合わせは?

Kさん 私が図面を書いて、要望も含めて小野社長に相談しました。小野住建さんは自由設計の注文住宅なので、私の要望を漏れなく叶える方向で打ち合わせが進みました。例えば室内の壁は珪藻土+漆喰の塗料に加え、遮熱+断熱塗料「ガイナ」なども採用していただきましたし、いろんな要望が実現できました。



住宅性能面は?

Kさん 断熱・気密性能は、小野住建さんにお任せすれば間違いないと思います。外壁の軸間にグラスウールを105ミリ充填断熱し、さらに60ミリのカーボン入り高性能断熱材「ラムダボード」を付加断熱、屋根は高性能グラウスール 300mmを施工していただきました。寒さ厳しい青森でも十分な断熱性能です。



また気密性能は大工さんなど職人さんの知識・技術が重要な部分ですが、大工出身の小野社長の指導のもと、専属の大工さんたちが妥協のない丁寧な施工をしてくれています。

実際、この家で3度、冬を過ごしましたが十分暖かいです。この家はオール電化なので、照明や家電、調理、暖房などは全て電気を使用していますが、1月2月など、一番寒い時期でも電気代が3万円程度で済みます。夏場は1万円程度なので、光熱費負担は年間で20万円を少し超える程度で済みました。

住み心地は?

Kさん 3度の冬を過ごしましたがとても快適です。断熱気密性能が良いのが前提ですが、暖冷房は1階と2階の天井にエアコンを埋め込み、ダクトを通じて全部屋に供給される仕組みで24時間、25℃の自動温度設定にしています。



弘前は夏は35℃を超えることもありますし、冬はマイナス6℃以下にもなります。四季がはっきりしていて、自然も豊か、冬はスキーも楽しめるのは弘前の魅力でもありますが、暑さ、寒さは厳しい面もあります。

でもこの家は、室温はどの部屋も、どの時間帯でも25℃からせいぜい1℃前後しか違わない温度になっています。暖房機は視界に入るところにはありませんし、温度調整も家全体で自動なので、普段、暖房や冷房、家の寒さや暑さを意識することなく快適に過ごしています。

我が家の工事中も、ちょくちょく現場に見学に行きましたが、小野住建の大工さんたちはいつも真面目に、しっかりした仕事をしてくれていました。大工出身の小野社長が新しい技術を学び、大工さんを指導しているので、ベテラン大工さんはもちろん若手の大工さんも施工技術が高いのだと思います。


2020年09月現在の情報です。詳細は各社公式サイト・電話等でご確認ください。

<h2 class="p-title p-title-05">小野住建の取材記事</h2>