Story 取材記事

「うえはら生花店」店舗リニューアルと自宅を新築 北広島市U邸/松浦建設


北広島市民に40年以上親しまれる「うえはら生花店」。冠婚葬祭やプレゼント、自宅用と、幅広い用途の花を販売しています。ご夫婦が店舗のリフォームと新築住宅の建設を実現。体験談を伺いました。

趣味のバスケットボールが繋いだご縁



店舗リフォームと新築マイホームを手がけたのは、札幌市清田区のエコットハウス(株式会社松浦建設)です。同社は高断熱高気密、パッシブ換気システム、外装の次世代レンガ、そしてリフォームの豊富な実績で知られています。

エコットハウスは



基礎 200ミリ
土間 100ミリ
外壁 200ミリ相当
天井 500ミリ

厚さが合計で1メートルの断熱材と
高性能トリプルガラスの窓
を標準とする高断熱高気密住宅と、
温かい空気が上昇する性質を利用した自然のエネルギーだけで空気を循環させる換気方式「パッシブ換気システム」で、室内空気環境の改善を進めています。



また、メンテナンスの負担が少なく、時を経て風格が増す「次世代レンガ」の外壁も特徴です。




ご主人と、松浦社長はバスケットチームのチームメイトです。ご主人が、社会人になってから立ち上げたバスケットチームに、松浦社長が加入して以来、20年のお付き合いになります。
ご主人は、松浦建設で住宅を建てた幼なじみから、住み心地の良さ、省エネ性能の高さなどを聞いていたことから、店舗づくりと家づくりの両方を任せたいと思うようになったそうです。

スケルトン階段が光を透過する吹き抜けの明るい店舗



自宅の新築の前に改装した店舗を拝見します。スタッフさんに迎えられ、店内へ足を踏み入れると、色鮮やかな花々に目を奪われます。訪れたのは、すでに日が暮れかかった夕方でしたが、大きな窓から光が差し込み、心まで華やぐ空間でした。



リピーターが多く地域で人気のうえはら生花店。人気の裏には、内装デザインの良さも一役買っていそうです。

2階はもともと住居でしたが、水回りの改修なども兼ねてリフォームを実施。店舗正面部分の採光の強化も行い一部を吹き抜けの店舗空間にしました。

自宅は使いやすさにこだわった個性的な間取りに

店舗リフォームの次に実施したのが、隣接する土地に建設したマイホームの新築です。

エコットハウスの家づくりが特長とする高断熱やパッシブ換気、次世代レンガなどは、上原邸も同様ですが、さらに建て主の要望を踏まえ、

  1. カーポートや土間も含む家事動線の使いやすさ
  2. トイレや洗面化粧台、浴室などをバックヤード化
  3. 和室や造作など、居心地の良い空間づくり

などの工夫も随所にあります。
では早速、お住まいをご紹介します。



ご自宅の外壁は、総レンガで風格が漂います。珍しいグレーの色合いをセレクトしました。広々としたカーポートでは、夏になると家族でBBQをしたり、お子さん用のプールを置いて遊んだりしているそう。

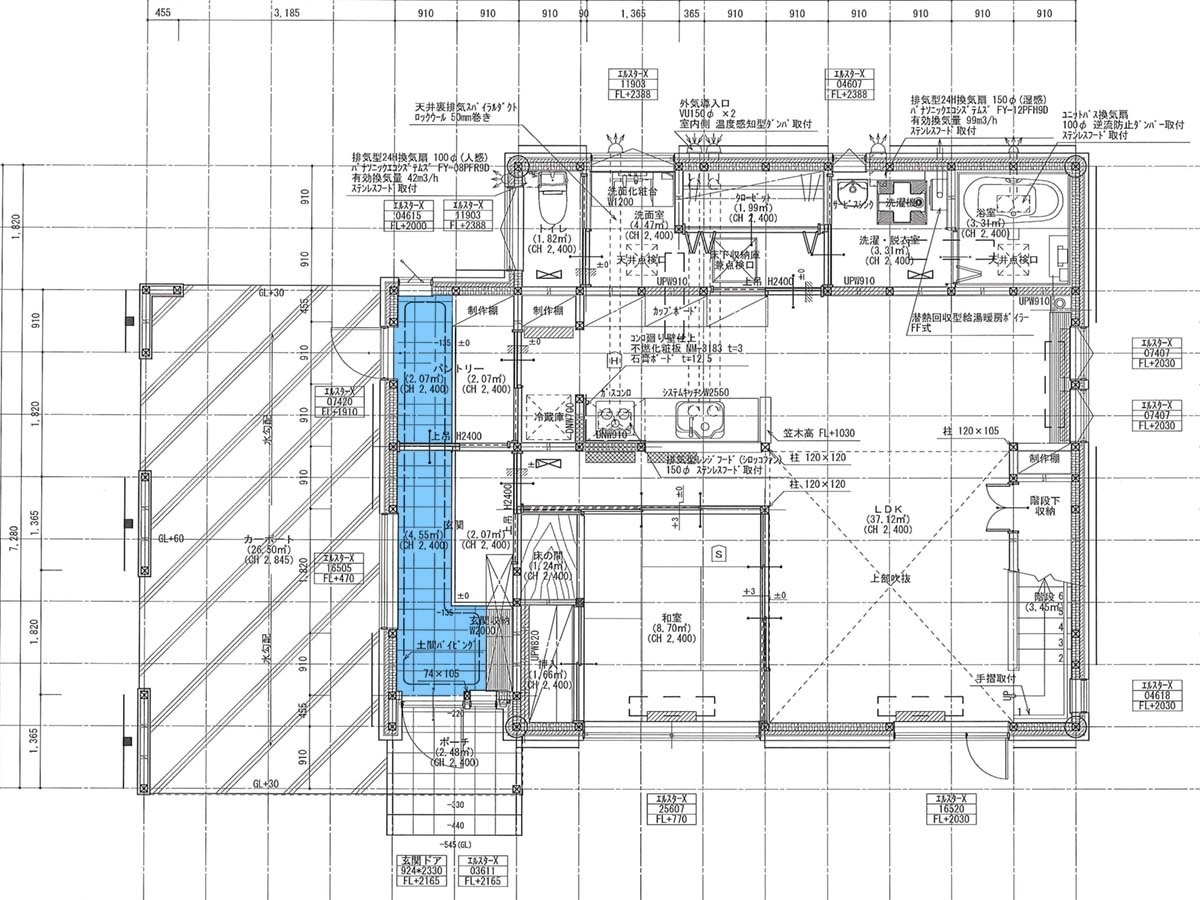
玄関土間から始まる家事がしやすい生活動線



H邸の大きな特長が使いやすい生活動線です。玄関を開けると、端の勝手口まで続く開放的な土間があります。




右奥に見えるのが勝手口。カーポートから勝手口、土間、パントリー(食品庫)、冷蔵庫、キッチンが一直線なので、買い物帰りの収納には大変便利です。



キッチン裏には、トイレや洗面化粧台、洗濯・脱衣室、浴室があります。水回りをバックヤードに配置したのは、生活感を見せたくなかったから。扉を閉めれば外から見えないため、急な来客があっても安心です。

開放的な吹き抜けと和室のあるLDK



大きな吹き抜けと窓が開放的なLDK。造作の手摺りがより空間広く感じさせます。



家づくりに際して、間取りやデザインなどの大枠は主に奥様が考えたとのこと。その奥様のこだわりが詰まった場所の一つが、LDKにつながる形で設けられた和室です。



床の間には季節の花などを生けています。床板には、床柱の端材を使いました。引き戸で閉じれば、リビングと遮断されたプライベートな空間としても利用が可能。来客用にも重宝しそうです。



2階には収納を確保した子ども部屋と寝室、ウォークインクローゼット、トイレが設けられています。

Q住み心地は?

とにかく暖かさが抜群です。雪で濡れた靴も玄関に置いておけばすぐに乾きますし、冬でも風呂場まで暖か。こんなに暖かいのに暖房費が抑えられていることも助かっています。

Q家づくりで印象的なエピソードは?

松浦社長はもちろんのこと、工事現場に何度も足を運び、現場の大工さんたちともよくコミュニケーションをとりました。大工さんたちが、こちらのお願いを快く引き受けてくれてありがたかったです。


写真は造作でつくってもらったオリジナルの座卓テーブル


子どもの勉強机を作ってもらったり、木材を真っ直ぐに切る方法を教えてもらったりと、本当にお世話になりました。

Qこれから家を建てる人にメッセージをお願いします



家づくりの際は、もともと夫婦で”こういう家が建てたい“という明確なイメージがあったので、そのイメージや要望を叶えられるのかどうかよく話し合いました。

3ヶ月の間に打ち合わせを14回も行い、気になる点については松浦社長だけでなく大工さんにも詳しく話しを聞けたのが良かったです。

家を建てる際にはデザイン重視になりがちですが、おしゃれにする方法はインテリアの工夫でも叶うので、これから家を建てる人は性能面についてもしっかりと検討されると良いと思います。

2022年03月現在の情報です。詳細は各社公式サイト・電話等でご確認ください。

<h2 class="p-title p-title-05">エコットハウス(松浦建設)の取材記事</h2>