Story 取材記事

車イス生活を想定したセカンドライフを楽しむバリアフリー平屋住宅 札幌市H邸


JR駅や幹線道路に近い住宅地に立つH邸は、60代の奥さまと70代のご主人が暮らす新居です。設計・施工したのは白石区の瀧本ホーム。新築はもちろん、小さな修繕工事や断熱改修、リフォームやリノベーション、ZEH住宅など、住まいに関わる工事の全般に渡り、豊富な施工実績を持つ工務店です。

ご夫婦が新築したのは、老後の「車イスの生活」を想定したバリアフリー住宅。「老後」という言葉が似合わないほど元気なふたりが、瀧本ホームで「終の棲家」を建てたいきさつを伺いました。

階段の上り下りが必要ない「平屋」と決めた老後のための新居

これまでHさん夫婦が暮らしてきたのは、自営している会社倉庫の2階を増改築した住宅でした。20段ほどの階段を上り下りする生活は、年齢を重ねるごとに身体的な負担を感じるようになってきたそうです。

さまざまなタイミングが重なり、かつてご両親が暮らしていた土地に住まいを新築することに。瀧本ホームに家づくりを依頼したのは、住んでいた家の外壁修理で信頼関係ができたご縁からでした。



風除室の付いた玄関は、正面階段の付いた道路側と駐車スペースからアクセスしやすいスロープ専用の2か所を設けています。



シューズクロークの壁に収納棚を造作した家族用と、来客用にルートを分けた玄関。外出時の上着やランニングが趣味のご主人の靴などは、家庭用玄関に収納しています。



玄関ホールには、シャビーシックな板張り調の壁紙をポイントに使いました。街角を描いた絵がよく似合っています。美術館や画廊を見て回るのが趣味だというご夫婦。室内には、お二人が選んだ絵画があちこちに飾られています。

引き戸や手すり、間口の幅は、車イス生活を想定

H邸は、玄関も含めて扉はすべて引き戸になっています。室内の扉は開口幅が広くとられた吊り戸になっており、開閉の音も静かです。交通量の多い幹線道路近くでありながら、窓を閉め切っていれば音はまったく聞こえません。

音や外気温に左右されない空間が保たれているのは、壁の厚さと気密性の高さのおかげです。試しに開けると車の音が飛び込んできます。



対面キッチンを備えたリビングは、大きな窓から日差しが注ぐ明るい空間です。



将来のことを考えて、引っ越しを機に仏壇じまいしたHさん。仏壇の代わりに、写真やお花を飾る家族のメモリアルスペースを作りました。



キッチンは、収納量をたっぷり確保。勝手口があるので、庭のコンポストに生ゴミを出すのもスムーズです。すぐそばにはウォークインタイプのパントリーも備えています。



勝手口前のテーブルセットは、庭仕事の合間の休憩にぴったり。



唯一の階段は、リビングに隣接する洋室に作ったロフトにつながる6段だけ。ロフトスペースは、お孫さんたちがお気に入りの遊び場になっています。

暮らしに合わせた可変性のある間取りを実現



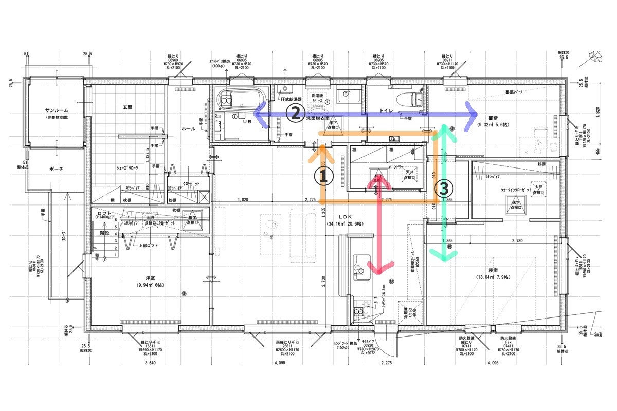
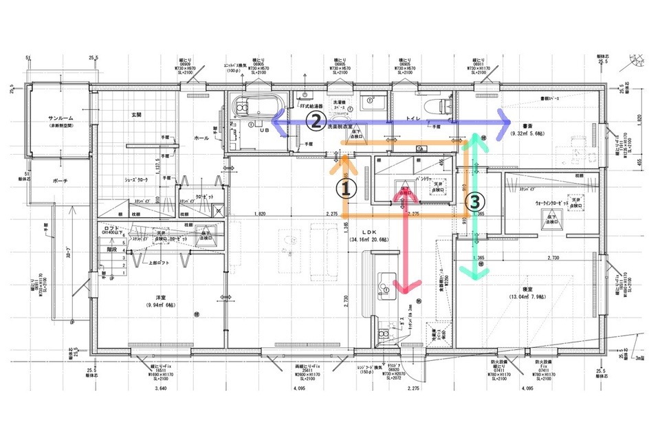
間取りで見る動線①②③

LDKと寝室、水回りの動線は、車イスやシルバーカーで移動できる回遊式の間取りになっています。トイレ横の書斎を寝室として利用するなど、部屋の用途が変えられるうえ、水回りの扉を開け放てば車イスでも直線移動しやすい設計です

「車イスで暮らす家に必要な要素を、すべて設計に反映しました」と瀧本社長が話すように、回遊動線のほかにも、最大で約130㎝とった開口部、2方向からアクセスできるトイレ・洗面所、玄関や水回りの手すりといった設計に、将来を考えた工夫が見られます。


Hさま(左)と瀧本社長(中央)のお付き合いは、外壁工事をした8年ほど前から


瀧本社長「かつて車イス生活をなさっているお客さまの家づくりを手がけた際に、バリアフリーの勉強をしました。若いオーナー様は、30〜40年後の生活を想像しにくいものです。不便を感じるようになってからリフォームするのが一般的ですが、H邸は家に対するご希望が明確だったので、最初から設計に盛り込むことができました」。

間取り図動線② 



トイレと洗面、バスルームは書斎から続く一直線上に配置。



ご主人の書斎は、壁全面に可動式の書棚を造作しています。

間取り図動線③ 



ご主人の書斎と寝室をつなぐ廊下には、壁の奥行きを調整して、持参した食器棚がジャストサイズで収まりました。

季節の移ろいを感じる暮らしが元気の源

「あと5年は仕事をするつもりです」と話すご主人は朝3:30からのランニングで体を鍛え、奥さまは庭の手入れに精を出す毎日。新居でのシニアライフを謳歌しています。前の家から水仙や芝桜を移植したり、家庭菜園の準備をしたり。夏に向けて庭仕事はますます忙しくなりそうです。



去年のうちに移し替えておいた芝桜が新居の法面を彩っています。



庭の空きスペースは、夏に向けて家庭菜園を作る予定です。季節を問わず、コンポストで作った堆肥を土に混ぜ、エコライフを実践しています。



敷地は約370平米あり、お庭や畑もゆったりとした広さです。



瀧本社長経由で業者さんに依頼して、大きく育った思い出のしだれ桜も移植しました。

ご夫妻にうかがいます

Q.老後のために新築平屋建てを考えたのは?

親の生活を見て、車イス生活や荷物の整理について考えるようになりました。母は健在ですが物を大切にする昔の人なので、持ち物も大量にあり、その整理は大変なものでした。自分の子どもたちには、同じ思いをさせたくないと思ったんです。物を処分して引っ越しするのは想像以上に重労働。年齢や体力的にも最後のチャンスだったと思います。

Q.家づくりにあたり、伝えた希望は?

バリアフリーで、暖かくて明るく、パントリーやウォークインクローゼットなど収納豊富な平屋の家という希望だけお伝えしました。寝室とトイレが近く、ドアの開閉も静かなので、ランニングに出かける朝も妻を起こさず静かに出発できます。この家と、この暮らしに、とても満足しています。



2022年06月現在の情報です。詳細は各社公式サイト・電話等でご確認ください。

<h2 class="p-title p-title-05">株式会社 瀧本ホームの取材記事</h2>