Modelhouse モデルハウス情報

【札幌市白石区】北のブランドの家モデルハウス(完全予約制)

開催日 2022年2月1日(火)から10:00-18:00 ご都合に合わせてご予約ください
会場 札幌市白石区平和通17丁目北3-4
道央自動車道・大谷地IC出口手前
お問い合わせ 011-375-0275

モデルハウス・北のブランドの家



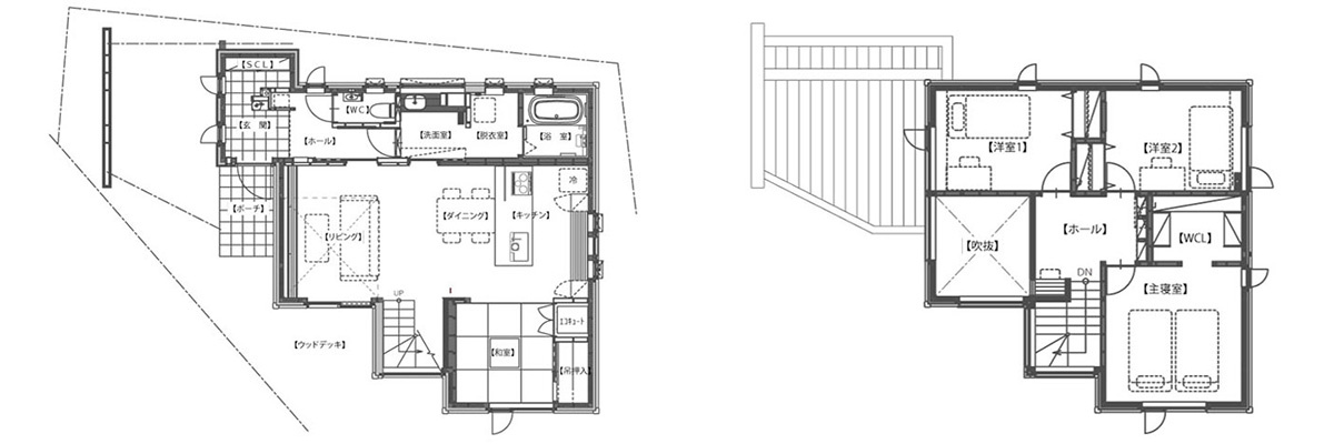
レンガと木材の温かみある外装、室内は落ちついたインテリアに囲まれて
お気に入りの音楽を聴きながら、ゆっくりとした時間を過ごす。
モデルハウス・北のブランドの家は、そんなご家族をイメージしてプランニングしました。

LDKはキッチンからダイニングとリビングを見通せる約20畳の広さ。
隣接して掘りごたつを備えた和室もあり、さらに玄関と水回り、リビングは回遊動線で、
忙しい朝や夕方の時間でもストレスフリーな動線です。
ゆとりある空間を、限られた変形敷地をうまく使ってプランニングしています。



エアコン1台でも暖房できる 1メートル断熱トリプル

エコットハウスが標準仕様とする高い断熱性能を生かし、モデルハウスはエアコン1台による全館暖房を実現しました。
パッシブ換気システム(北のブランド)と組み合わせ、光熱費負担が気にならない、
空気が心地よい住まいとなっています。

このほか、子どもの見守りにも役立つ先進のIoTも導入しています。

北のブランドの家は、札幌商工会議所が認証するこだわりの住まい。
札幌商工会議所からは

メンテナンスフリーの道産外壁材と積雪寒冷地に耐候性のある屋根材、道内に適した換気システム(パッシブ換気システム)を採用し、市場における評価も高い

と、当社の技術力を高く評価をいただいております。



「北のブランド」認証品を積極的に採用した「北のブランドの家」

暖房はエアコン1台、IoTで快適・便利なライフスタイルをご提案します。

新型コロナ感染対策として、完全予約制ですが、早めにご相談いただけましたら曜日・お時間は柔軟に対応いたしますので、まずはお問い合わせください。
詳細のご確認やご予約はこちらから

2022年01月現在の情報です。詳細は各社公式サイト・電話等でご確認ください。