Story 取材記事

帯広市・T邸/注文住宅10年目の住み心地を聞きました

帯広の注文住宅専門の工務店・石井建設(石井靖久社長)が、2009年に建設した帯広のT邸。約10年間暮らしてよかったことをTさんご夫妻にお聞きしました。


1 大きな窓でも室内が寒くない



奥さま「石井さんには採光を大事にとお願いしました。左上の横長の窓は採光用で、小さいですが家をかなり明るくしてくれますし、夜はそこから星空も見えます」

ご主人「右の大きな窓はトリプルサッシ。大きな窓ですが断熱性能が高い製品なのでと石井社長にお勧めされて採用しました。家の中が明るくてとても良いですが、大きな窓を付けても冷気が室内に入ってこないことも非常に助かっています。窓の下に蓄熱暖房機がありますが、この暖房機1台で家じゅうが十分暖かくなります」

2 屋根の雪が落ちてこない



奥さま 「屋根から雪がほとんど落ちることなく春を迎えることができるので除雪の負担が少ないですね」

屋根材にアスファルトシングルを採用
アスファルトシングルはアスファルトを浸透させたシートの表面に石粒を接着している屋根材。表面がザラザラしているので屋根から雪が落ちにくい。軽量で耐久性、意匠性も高い点などがメリット。屋根面に雨風によるダメージを防ぐアスファイルトルーフィングを施工した上に、屋根仕上げ材のアスファイルトシングルを施工しているので正しい施工を行えば雨漏りのリスクの低い屋根材。

3 収納力が十分



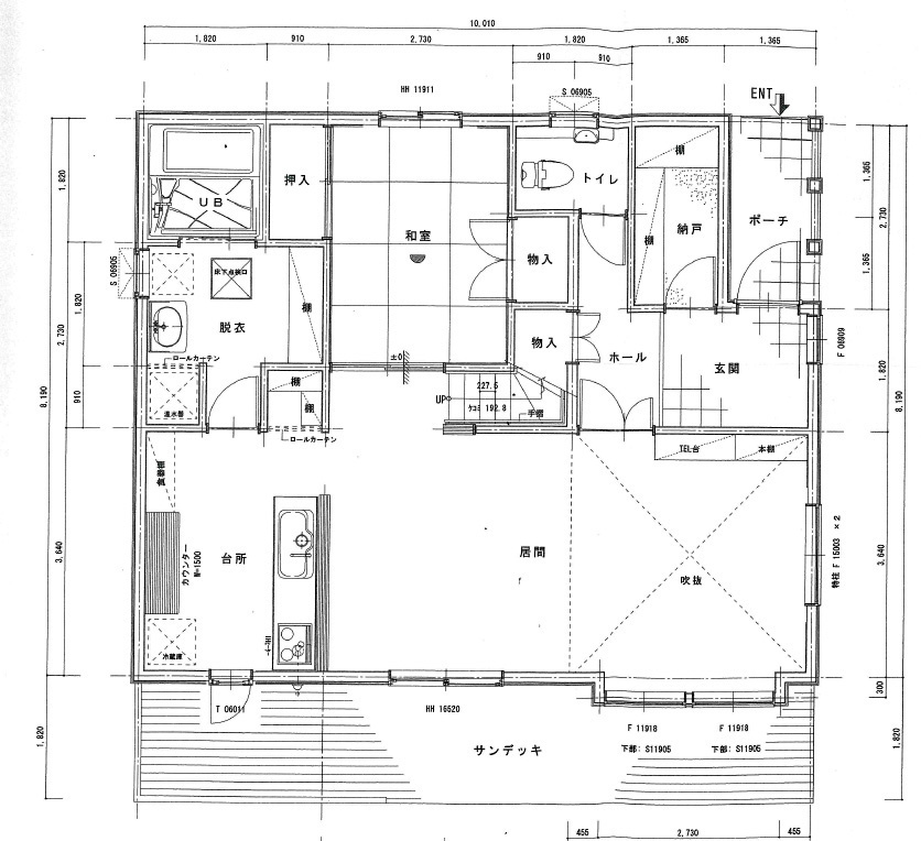
奥さま「ここは帯広の郊外なので、買い物も頻繁には行けないので生活用品などはある程度まとめ買いします。キッチンや個室などにもクローゼットを確保してもらいましたし、特に玄関にある納戸は、ジャガイモやキャベツなどの食材、そして生活用品をしまっておくのに大変役立っています。泥汚れのついた長靴などの収納にも使えます」


一階の平面図 玄関の横に大きな納戸を配置


4 ウッドデッキが楽しい



奥さま「ウッドデッキを建物の横幅いっぱいに長くしたのは石井さんの提案です。庭で家族一緒に焼肉するとき、家庭菜園をやっているときなどにはベンチにもなりますし、道具を置くスペースにも活用しています」

5 家族との会話も弾む対面キッチン



奥さま「料理している時でも前を向けば家族がいるので話をしたりします。テレビも見えますし。見晴らしが良いので気持ちの面でも良いです」

6 キッチンの通路幅が広いのでぶつからない



奥さま「シンクやコンロのある部分と背面収納との間の距離、つまり歩き回れる通路幅は120センチ位確保していただきました。妹が遊びに来た時などに、一緒にキッチンに立ったりすることがありますが、すれ違ってもぶつかることがないのが嬉しいですね」

7 吹き抜け&リビング階段の解放感+つながり



奥さま「リビングには2階に通じる階段と吹き抜けがあります。リビング階段は子どもたちが学校から帰ってきたときに子ども部屋に入る前に様子を見れるというのも良いし、吹き抜けの2階部分にはリビングとつながる窓があるのでリビングからも声が届きます。そして吹き抜けは開放感があるのが嬉しいですね。来客もリビングの解放感に驚く人が多いんですよ」

8 洗濯物がよく乾く



奥さま「男の子2人がいるので、洗濯物は多く1日に何回も干さなきゃならないこともあります。1階の階段を上ると共有ホールがあります。1階の暖房機で暖められた空気が階段や吹き抜けからあがってくるので、ここに洗濯物を干すとすぐ乾きます」

8 子ども部屋は後付けの間仕切り



奥さま「子どもが小学生のうちは個室はいらなくても、少し大きくなってきたら自分の部屋を欲しがるかなと思って、その日に備えて、2階の子ども部屋はこの写真の中央上の部分で、後日、部屋を2つに仕切りやすいように新築時から計画していただきました」



「実際は、子どもたちは2人とも、子ども部屋は寝るだけで、普段は1階の和室にいることが多くて、個室が欲しいとは言いませんでした。家族の暮らし方の事情は実際に住んでみないとわからない部分もあるので、部屋の間仕切りなどを何年か後に変更するときに、リフォーム費用が多くかからないような配慮をしていただけているのはとてもありがたいです」

9 納得して建てられた注文住宅



奥さま 「窓を大きくしてほしい、床は明るい色の無垢材がいい、コンセントを多めにしてほしい、照明を自分たちで選びたい、といった要望を丁寧にくみ取って実現してくれましたし、断熱性能のことや、造作の棚などはプロの知識、アイデアで熱心に提案してくれたので、一つひとつ納得しながら家づくりを検討できました。本当にまっさらの状態から要望とアイデアを組み合わせて建てる注文住宅だったので、納得できる家づくりでした」



トイレに陶器の手洗い器があるのですが、実家のお父さんが作ってくれたものを採用できました。思い入れのあるものが詰まった我が家です。

10 大工さんとしてのしっかりした施工

ご主人「石井さんは社長ですが、大工さんでもあるので、この家では基礎から大工、造作、仕上げ工事などもやってくれました。丁寧な仕事ぶりをたくさん見せていただいたのでその時も感激しましたが、10年暮らした中で不満が全く出てこないということは施工がしっかりしているということだと思います」 
※石井社長は大工もできますが、現在は専属大工に大工工事は任せています。



奥さま「造作の棚など、石井さんが作ってくれた部分でお気に入りの箇所がいろいろあります。例えば2階の手すりの部分は無垢材を使ってデザインも、持った感触もとても良いんです」



奥さま「樹脂サッシですが木枠を付けてくれて家の雰囲気がよくなりました。石井さんのアイデアが随所にあります」

11 建て主が施工に参加できた

ご主人「建築中は毎日のように現場に遊びに行きました。木部の塗装などを体験させてもらえて楽しい経験になりました」

12 メンテナンスの心配がない



奥さま「床は無垢材を使っていますが、一度ワックスをした以外は補修などは何もしていません。天井のクロスが一部剥がれたのと、温水器の調子が悪くなったことはありましたが、石井さんはすぐ駆け付けてくれて修理してくれました。石井さんのそういう人柄は本当に信頼できるし、安心です」

あとがき

建て主のTさんは、石井さんと趣味の水上バイクで縁があり、最初から石井さんに好印象を持っていたそうですが、電気業を営む同級生に石井建設が業界内でも評判がいいと聞いたこともあって、ほかの住宅会社には相談せず石井建設に決めたそうです。



奥さまは「夫が石井さんで間違いないと最初から言っていたので石井建設さんにお願いしましたが、家づくりの打ち合わせも、施工も、アクターメンテナンスも本当に丁寧にやってくれるので信頼できると私も思います。この家を見学して石井建設に家づくりを依頼した人もいます。おすすめの住宅会社ですよ」と話してくれました。

T邸のスペック



建築面積 82.80㎡ 24.99坪
延床面積 131.24㎡ 39.62坪
天井断熱 ネットブローイング400ミリ18キロ
壁の断熱 高性能グラスウール140ミリ16キロ
床の断熱 高性能グラウスール250ミリ16キロ

石井建設とは?



石井建設は、石井靖久社長自身が、現場監督、大工、2級建築士、2年半のカナダ修行、基礎工事など家づくりに関するスキルを習得し、2005年に帯広で創業した工務店です。

口コミなどで多くの問い合わせを受けているのに、顧客の要望を丁寧にくみ取ったプランニングと、確かな施工を実現するために、受注棟数も新築3棟を目安に、売り上げ拡大を追わない経営方針も特徴です。


2020年04月現在の情報です。詳細は各社公式サイト・電話等でご確認ください。

<h2 class="p-title p-title-05">株式会社石井建設の取材記事</h2>