Story 取材記事

建築士が平屋の注文住宅を発注した工務店とは?/十勝・大樹町・E邸


住宅建築の専門知識がある建て主さん

2016年、大樹町内に平屋の注文住宅を建てたEさん。過去に大学で建築を学び、東京で現場監督の仕事を経験した経歴があります。十勝にUターン後、現在は町内で建築関係の業務に携わっています。

「以前住んでいた借家は築40年以上で、風呂場の床土間からツクシが生えてくるほど古く、隙間風も吹込みとにかく寒くて大変でした。妻も建築の知識があるし、子育て環境、家事動線など、理想の我が家を夫婦一緒に考え、図面を作成し、要望もあらかじめまとめて、それを実現してくれる住宅会社を探すことから開始しました」

玄関の計画もしっかり検討



この分厚いファイルは、Eさんが検討した要望ポイントの記録です。玄関だけでも

客用と家族用の出入り口を分ける
コートの掛けられるSIC(シューズインクローゼット)
鏡を設置し、広がりを持たせる。鏡の裏にスリッパ入れ設置
ニッチと間接照明をデザインに取り入れる
外部にモノをかけるフック
框(かまち)を長くしたい。人が多くても安心
框の下に欠きこみを作り靴を収納
玄関土間はCOM素地としたい
人感センサー付きLED
断熱性の高いドア→D2仕様OK(価格検討)
床仕上げは玉砂利洗い出し、ポーチはタイル(剥がれ、欠けは出ないか?)

といったポイントが書かれています。建て主さんの家づくりに関する知識、関心の高さが伺えます。

具体的な打ち合わせの過程で諸事情を踏まえて判断するので、全ての要素をもれなく取り入れたわけではありませんが、一つひとつ、住宅会社と検討を重ねたことが手書きの書き込みからも読み取れます。実際に完成した家の玄関を見てみると



玄関ドアは断熱性能の高いD2仕様の製品が採用されています。



玄関土間の床仕上げも玉砂利洗い出しになっています。家族の靴やコートなどは来客の視界に入ってきませんが、



玄関奥には家族用のSIC(シューズインクローゼット)がありました。

右側には間接照明、そして家族の写真を飾れる棚をニッチスペースで用意しています。



コートを掛けられる棚も用意しています。

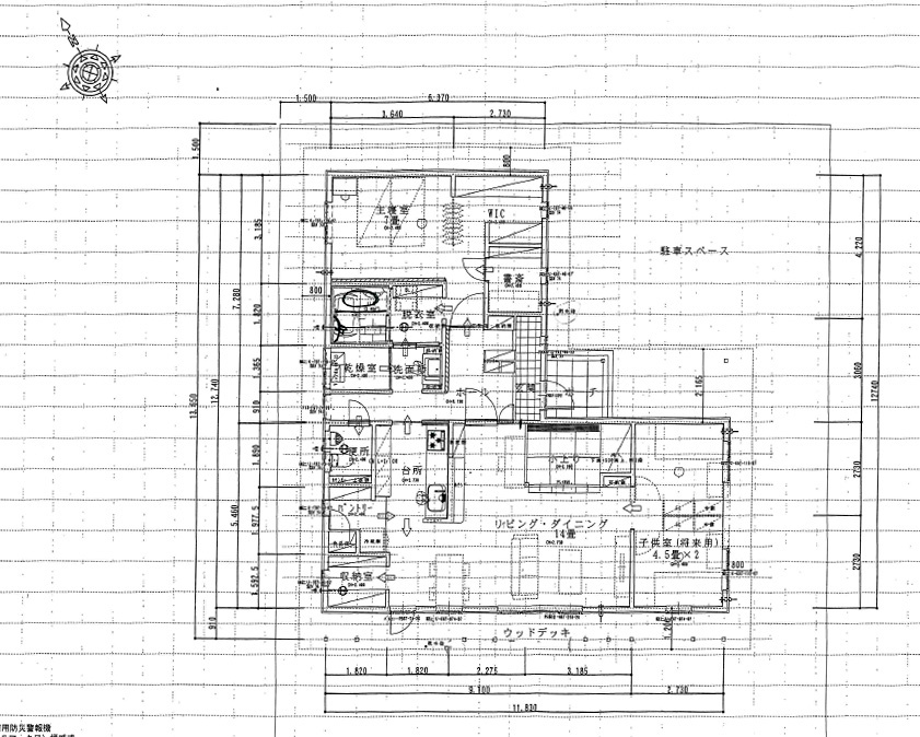
平屋住宅でプランニング



まずは家全体を拝見します。見ての通りの平屋住宅です。カーポートと家本体のデザイン、色、素材感を揃えているのが第1のポイントです。



第2のポイントは軒の高さです。玄関先に立った時、住宅とは思えない軒の高さにびっくりしました。写真ではなかなか伝わりにくいので玄関に石井社長に立っていただきました。



玄関から左に行くとLDK(リビング・ダイニング・キッチン)と子ども部屋、正面は洗面所や洗濯物の乾燥室、キッチン、右に行くと主寝室や書斎につながっています。



Eさんは「平屋住宅にするのは最初から決めていました。妻の実家が平屋で、妻が平屋が好きだったからです。私自身は2階建てで育ったので平屋の良さは知りませんでしたが、階段からの転落の危険性が無いことや、外壁などのメンテナンスのしやすさや、子どもが独立した後でも部屋が余らない、風の通りが良い、耐震性や防災の面でも優れるなど多くのメリットがあることに気づきました」と話してくれました。

「小上がり」がお気に入り



LDKには、小上がりが設置されていました。

ご主人「小上がりを作ってよかったと思います。家族や友達がソファだけじゃなくていろんな場所に座れます。和室っぽい空間も欲しかったですが客間を作ったとしても宿泊されることは滅多になさそうですし、親しい身内が宿泊する場合なら個室ではなくても小上がりで寝てもらっても良いかなと思いました」



小上がりの下は石井さんの提案による引き出し式の収納があり、お子さんの衣類など、すぐ取り出したいアイテムを収納するのに重宝しています。収納力の高さは予想以上です。



暖房・給湯は、LPガスでお湯を沸かす際に出る高温の排気熱を捨てずに加温に使うエコジョーズを主熱源に、空気の中に含まれる熱を利用して電気で暖房するヒートポンプを併用するハイブリッド型給湯暖房システム「VIVIDO」(ヴィヴィッド)を採用。光熱費削減と環境負荷低減を目指しました。調理は料理を美味しく作りやすいLPガスを選びました。



キッチンの背面収納のそのさらに裏側に、調味料や食材などを保存できる常温型のパントリー(食品庫)を設置。キッチンを綺麗に整頓できる工夫です。



キッチンの横にはダイニングテーブルがありました。テーブルの左側の壁にコンセントがあります。



ここにコンセントがあると、ホットプレートで焼肉などをするときに便利です。

Eさん「コンセントや照明設備の配置は、石井さんと電気屋さんに相談して決めました」

「水槽周辺は、細かなアイテムが多く雑然としやすいので、水槽設置用のカウンターについてはよく考えて石井さんに相談しました。また、調光システムや人感センサーを適所に採用することで、使い勝手のよい照明計画を実現することが出来ました。ライフスタイルや家具・家電の配置も踏まえたて、コンセントの配置をしっかり検討しておいてよかったと思います」



一般的には脱衣所や2階の共有ホール、あるいはリビングなどで洗濯物を干すケースが多いと思いますが、室内に洗濯物がかかっていると雑然とした感じになるのも事実。そこでE邸は機械室を兼ねた専用の乾燥室を設けました。使うときだけ引き出せるアイロン台も設置しています。



Eさんの要望で節水性の高いの男性用小便器も設置しました。

家づくりの経緯についてお話を伺いました。

住宅会社選びはどのように?



Eさん「最初は、十勝管内の中規模の住宅会社数社を見に行きました。妻と相談しながら作った図面をハウスメーカーにもっていくと、会社の体制、間取り、住宅ローンについても制限があったりすることも多く、営業と設計で担当が分かれていたり、細かな要望がかなえられなかったりしたので、小回りの利く工務店のほうが合っているのかなと感じました」

「石井建設さんには、かちまいの新聞広告で見た帯広の現場見学会で出会いました。石井社長が設計、施工、コスト、メンテナンスのことなど、相談したいと思っていたことになんでもその場で答えてくれたり、間取りや、収納など、いろいろな要望に対しても熱心に、丁寧に応じてくれました。また、昨今ではプレカットによる施工が多い中、石井さんは良質な木材を自身の目で選び抜き、自前の加工場で材料を制作していると伺ったので、家づくりに対するこだわりも知ることが出来ました。社長であり設計者であり、大工でもある石井さんの経験と人柄の良さで決めました」

打ち合わせの方法は?



Eさん「妻はキッチンや収納、水回り、家事動線関係を考え、私は性能や間取りなどその他もろもろを検討しました。要望は要望書にまとめて、それを元に打ち合わせをさせていただきました」

「打ち合わせは1回あたり2~3時間を月に2,3回程度。テーマ別にこちらの要望を元に、石井さんのアイデアを加えたり具体的で細かい打ち合わせを重ね、石井さんも私たちも毎回宿題が出るような感じで、その都度、カタログなどから予算内になるように選んでいきました。後半はショールームなどに同行していただき、水廻りの商品を選びました。住宅が完成したのは最初の打ち合わせから2年半くらい経った頃でした」

どのような要望をしましたか?

Eさん 「平屋で、コンパクトでも高機能な住宅になるようにしたいこと、木張り壁やテラスなど外観イメージや、冬期の落雪のことまで含め、イメージ写真などを見てもらいながら要望しました。石井さんは私たちが希望するライフスタイルを受け止めて、限りある予算の中で可能な限り叶えてくれました。例えば、室内外の塗り壁や、タイルカーペット張りを自分たちで施工し、その分を値引きしていただくなど配慮してくれました。石井さんからご提案頂いたおかげで、コスト面の懸念を解消するだけではなく、親族を巻き込みながらDIYで楽しく家づくりに参画することができました」

「私たちからは、たとえ無理そうな要望でもきちんと相談し、それが難しく時間のかかりそうなことであっても、石井さんは「やってみましょう!」と提案してくれるので、励まされつつ、結果的に細かなところも妥協せずに済みました」



最終的な満足度や住み心地は?

Eさん 「気になっていたところは全て解消できてから着工出来たので我が家への満足度、達成感はとても高いです。ツーバイシックスの充填断熱に加え、付加断熱、トリプルサッシを採用するなど断熱性能にはこだわったのでサイクルコストは軽減できていると感じています。併せて、ハイブリッド給湯暖房の効果も感じていて、1月の光熱費は2万円くらいでした。夏、冬を通じて快適さは申し分なく、夏場の室温上昇も抑えられているので、エアコンも設置していません」



要望事項で叶わなかったものは?

Eさん「ショールームで見学したときに1.25坪のお風呂に憧れを抱き、ずっとこだわっていましたが、1.25坪にすると全体計画にも影響し、コストも大幅に上がってしまいます。家族や石井さんとも相談し、最終的には1坪に収めましたが、今思えば身の丈に合ったちょうど良いサイズだったと納得しています。また、大工さんなど職人さんたちの施工技術や提案力もとても高く、現場の皆さんとも話し合いながら施工を進められたのも石井建設さんならではだったのではないかと思っています」

E邸の仕様



建築面積 126.21㎡
一階床面積 110.96㎡
延床面積 110.96㎡(33.57坪)
壁の断熱 高性能グラスウール16キロ140ミリ+ネオマフォーム30ミリ
床の断熱 高性能グラスウール16キロ235ミリ
天井断熱 ブローイングウール300ミリ(吹き込み用グラスウール18キロ)
玄関ドア D2タイプ
トリプルLow-eクリプトンガス入り

2020年05月現在の情報です。詳細は各社公式サイト・電話等でご確認ください。

<h2 class="p-title p-title-05">株式会社石井建設の取材記事</h2>