Story 取材記事

回遊動線で快適 平屋のモダンハウス/鹿追町O邸 カントリーヴィレッジ


豊かな自然に恵まれ、町内全域が「とかち鹿追ジオパーク」として認定されている鹿追町。今回お邪魔したのは、その住宅街に建つモダンな一軒家です。

平屋の良さを生かした間取りに細部までイメージを固めて作り込んだデザイン…魅力いっぱいの一軒をご紹介します。

色味にとことんこだわった外観



漆黒のガルバリウム製外壁が目を引くO邸。その色味は「どんな天気でも真っ黒に見えるように」と様々な天候の時に見学し、何色もある黒色の中から決めたこだわりのカラーです。施工は芽室町のカントリーヴィレッジ、同社の朝日良昌社長が担当しました。



「玄関ドアが外から見えない」「開放感がある」というご主人の希望を両立させたポーチ。



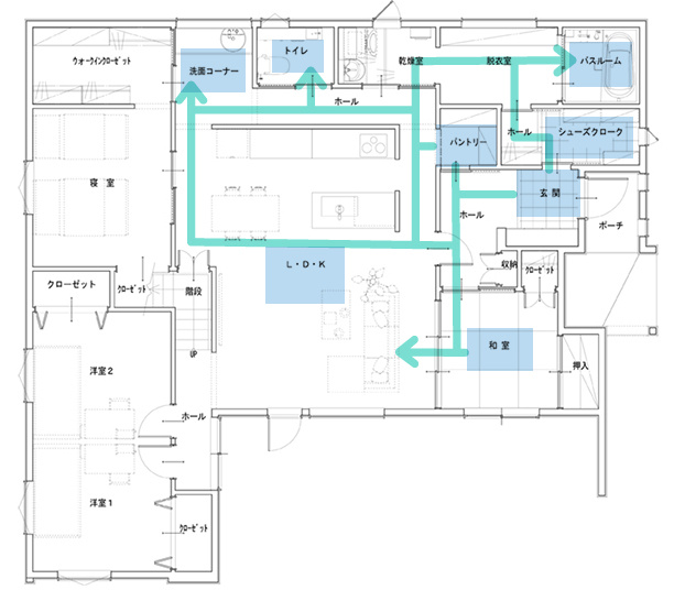
この家にはご夫婦と3人のお子さんが暮らしています。玄関は客間、LDK、パントリー、浴室のそれぞれの部屋へ直行できる造りにしました。



玄関ホールとLDKをつなぐ透明のドア。視線がリビングの奥まで遮られることがないように、飾り棚を設け、視線が通るようにしました。

インテリアは「生活感なくすっきりと」を徹底



ロフトつきの平屋であるO邸。ロフト部分の床見切りには薄手のものを使用するなど細かな工夫がされています。



キッチンはレンジフードまで黒で揃え、モダンでシャープな印象に。ダイニングは、料理の配膳がしやすいよう横並びにしました。



造作の棚はキッチンの面材と同じ素材を使用、キッチン全体が一体感あるデザインです。中には蒸気を排出する機械が内蔵されており、家電を使用しても湿気がこもりません。



扉を閉めればこのとおり。「生活感を出す余計な家具を置かなくて済むように」(奥様)と収納は多めに設計しました。



こちらは寝室。階段下のニッチは小さなPCデスクになっています。



寝室にはテレビの代わりに壁にスクリーン用のクロスを貼り、天井にはプロジェクター・ステレオが内蔵された照明を選択。LDK同様余計なもののない空間が実現しました。テレビや動画などが大きい画面で観られ「雨の日でも家で楽しめるようになった」といいます。



子ども部屋は、子どもたちが成長するまでは各部屋の仕切りを作らず、のびのび遊べる空間にしました。



「基本のインテリアはシンプルにしつつ、水回りには少し強めのデザインをもってきました」(奥様)とトイレはインダストリアル系のスタイルに。インテリアはコーディネーターと話し合いながら決めました。

回遊動線&家事楽設備で暮らしやすく



さて、O邸では動きたい盛りの子どもたちが走り回れるよう、また来客時にもスムーズに生活できるようにと回遊動線を採用しています。



普段はLDKの延長のように使っている和室。ご両親などが泊まりに来た際はLDKを通らずそのまま水回りや玄関へ行けるように設計しました。



玄関・シューズクロークからはそのままお風呂へ直行できる造りに。「子どもたちがどろんこになって帰ってきても安心です」(奥様)



洗面台は水栓がボウルから出ているため周囲が濡れず、お手入れも楽々です。



洗濯機の隣にはSKシンクを設置。汚れ物はつけ置きや予洗いの後、すぐに洗濯機に入れることができるようにしました。その上にあるのはガス乾燥機「乾太くん」。「評判が良かったので採用しましたが期待どおり」(奥様)と、その乾燥力で家事の時短に貢献しているそうです。

「想像以上だった」プランの納得感が決め手に

「家づくりに後悔はひとつもない」というご夫妻。詳しいお話を伺いました。



住宅会社選びはどのように進めましたか。

検討を始めたのは家を建てる3年前からです。性能面への信頼性を重視して十勝2×4協会の会員住宅会社をメインにしつつ、デザインが好きな家を見ていきました。見学したオープンハウスは50軒以上。複数の工務店を並行して検討していました。



選んだ決め手は?

とにかくプランの良さです。カントリーヴィレッジさんは予算ありきのプランではなく、まずはやりたいことを凝縮したプランを作り、そこから一緒に取捨選択していくスタイル。とても納得感がありました。

全部で8パターンの図面を提案いただいたのですが、こちらの要望に対して絶対にNOとはいわず、できる範囲でこういう方法があると提案してくれるので、最終的には私達の想像以上のプランになっていました。



打ち合わせはどうでしたか?

他社との打ち合わせでは自分たちの要望と相手の解釈に微妙な差を感じたこともありましたが、カントリーヴィレッジさんは細かな部分までしっかりと汲み取ってくれました。遠方なのでグループLINEでやりとりしたりもしましたね。



後悔のない家づくりのポイントは。

家づくりについては工務店まかせではなく、自分たちで考える部分を大事にしたいと思っていました。市販のソフトでパースを作ってみたのは、イメージを固めるのに役立ちましたね。朝日社長は意見を押し付けず、建主の考えを尊重してくれるタイプ。何でも相談できたことが満足度の高さにつながったと思います。

キッチン収納や、洗面、トイレ、洗濯脱衣などの備え付けの収納は、しっかり見た目もこだわりたかったので全て造作してもらいました。八木さんに扉の開き方や、収納部分のサイズなど細かいところまで綿密に計算して作っていただいたので、おしゃれなだけでなくとても使いやすくて満足しています。



記者の目

「活発に動き回る息子たちも、走り回れる家になって喜んでいます。のびのびと過ごさせてあげられる環境になって、ぐんぐん成長して行く様子には驚いています」と笑顔のおふたり。家づくりの満足度が暮らしの充実につながるのだと改めて感じる幸せな取材でした。

写真 Commercial Photo / Movie  SWITCH


2021年11月現在の情報です。詳細は各社公式サイト・電話等でご確認ください。

<h2 class="p-title p-title-05">株式会社カントリーヴィレッジの取材記事</h2>